- 物件番号
- 53626-68952
| 階数 | 4階 |
|---|---|
| 用途/仕様 | 事務所 |
| 面積 | 22.00坪(72.73㎡) |
| 賃料 | |
| 共益費 | |
| 保証金/敷金 | |
| 入居日 | |
| 所在地 | 東京都港区麻布十番2-5-13 |
| 竣工 | 1985年1月 |
| 最寄り駅 | 東京メトロ南北線 麻布十番 徒歩 3分 |
| 構造 | RC造(鉄筋コンクリート造) |
ポイント
丸井ビルは、東京都港区麻布十番2-5-13に位置するオフィスビルです。最寄り駅は東京メトロ南北線「麻布十番」駅(徒歩3分)です。外観・内装ともに綺麗に管理されており、エントランスも洗練されたデザイン。麻布エリアならではのおしゃれなオフィス環境を求める方におすすめです。
無料相談で理想のオフィスを見つけましょう
東京で賃貸オフィスをお探しなら、仲介手数料0円の東京オフィスチェックにお任せください。
移転をお考えの方も、お迷いの方も、メールフォームやお電話でお気軽にご相談ください。
丸井ビル のアクセス
丸井ビル の募集中区画
| 階数 | 面積 | 賃料 | 共益費 | 保証金/敷金 | 入居可能日 | 検討リスト | 詳細 | 問合せ |
|---|---|---|---|---|---|---|---|---|
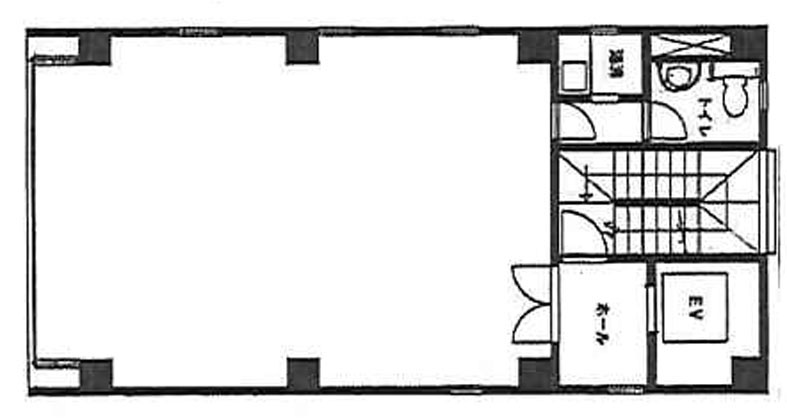
| 3階 | 22.00坪 | 330,000円 | 25,000円 | 6ヶ月 | 即 | 詳細 > 丸井ビル 3 (72.73㎡) |港区 の賃貸オフィス・セットアップオフィス | お問い合わせ > |
この区画にオススメのレイアウト
-
オフィスサンプルレイアウト120
- 広さ
- 30.2坪(100㎡)
- 会議室
- あり
- 従業員数
- 12
-
オフィスサンプルレイアウト118
- 広さ
- 40.2坪(133㎡)
- 会議室
- なし
- 従業員数
- 20
-
オフィスサンプルレイアウト117
- 広さ
- 22.6坪(75㎡)
- 会議室
- あり
- 従業員数
- 11
-
オフィスサンプルレイアウト116
- 広さ
- 39.9坪(132㎡)
- 会議室
- あり
- 従業員数
- 11
丸井ビル の条件に近い物件
-
エル麻布矢島ビル
東京都港区麻布十番2-8-8
- 面積
- 14.07坪 〜
- 空きフロア
- 1
- 最寄り駅
- 麻布十番 徒歩 2分
-
野沢ビル
東京都港区六本木3-11-6
- 面積
- 15坪 〜
- 空きフロア
- 1
- 最寄り駅
- 六本木 徒歩 2分
-
ソレアード六本木
東京都港区六本木3-3-17
- 面積
- 31.47坪 〜
- 空きフロア
- 1
- 最寄り駅
- 六本木一丁目 徒歩 3分
-
六本木グランドプラザ
東京都港区六本木3-1-25
- 面積
- 坪 〜
- 空きフロア
- 0
- 最寄り駅
- 六本木一丁目 徒歩 1分
丸井ビル の近隣のエリア・駅から探す
オフィス移転・物件探しを無料でサポートします
物件探しだけでは、オフィス移転は成功しません。
私たちは単なる「物件紹介会社」ではありません。オフィス移転にかかる費用総額を最小化する専門会社です。物件契約時の仲介手数料0円に加え、内装工事も中間マージンを排除した適正価格でご提案し、トータルコストを大幅に削減します。「希望の物件が見つからない」「移転費用を抑えたい」など、移転をお考えの方はメールまたはお電話でお気軽にご相談ください。




