- 物件番号
- 53442-58532
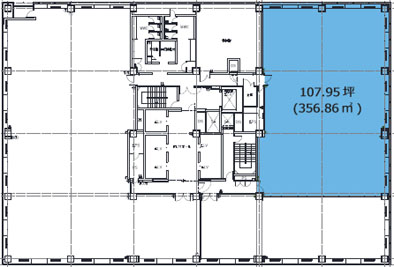
| 階数 | 14階 |
|---|---|
| 用途/仕様 | 事務所 |
| 面積 | 107.95坪(356.86㎡) |
| 賃料 | |
| 共益費 | |
| 保証金/敷金 | |
| 入居日 | |
| 所在地 | 東京都港区芝5-34-7 |
| 竣工 | 1994年1月 |
| 最寄り駅 |
都営浅草線 三田 徒歩 1分 JR山手線 田町 徒歩 1分 |
| 構造 | SRC造(鉄骨鉄筋コンクリート造) |
ポイント
田町センタービルは、東京都港区芝5-34-7に位置するオフィスビルです。竣工は1994年で、最寄り駅は都営浅草線「三田」駅(徒歩1分)、JR「田町」駅(徒歩1分)です。新耐震基準を満たし、OAフロア、男女別トイレを完備。駅近で利便性の高い物件です。
無料相談で理想のオフィスを見つけましょう
東京で賃貸オフィスをお探しなら、仲介手数料0円の東京オフィスチェックにお任せください。
移転をお考えの方も、お迷いの方も、メールフォームやお電話でお気軽にご相談ください。
田町センタービル のアクセス
田町センタービル の募集中区画
現在、他に募集中の区画はありません
この区画にオススメのレイアウト
-
オフィスサンプルレイアウト122
- 広さ
- 159.4坪(527㎡)
- 会議室
- あり
- 従業員数
- 50
-
オフィスサンプルレイアウト121
- 広さ
- 189.5坪(627㎡)
- 会議室
- あり
- 従業員数
- 80
-
オフィスサンプルレイアウト113
- 広さ
- 113.4坪(375㎡)
- 会議室
- あり
- 従業員数
- 84
-
オフィスサンプルレイアウト107
- 広さ
- 260.7坪(862㎡)
- 会議室
- あり
- 従業員数
- 96
田町センタービル の条件に近い物件
-
ヒューリック三田ビル
東京都港区芝5-25-11
- 面積
- 180.61坪 〜
- 空きフロア
- 2
- 最寄り駅
- 三田 徒歩 4分
-
三田UTビル
東京都港区芝3-42-10
- 面積
- 91.77坪 〜
- 空きフロア
- 1
- 最寄り駅
- 三田 徒歩 6分
-
サニーポート芝
東京都港区芝2-5-10
- 面積
- 26.41坪 〜
- 空きフロア
- 1
- 最寄り駅
- 芝公園 徒歩 3分
-
THE PORTAL 田町
東京都港区芝5-30-9
- 面積
- 57.73坪 〜
- 空きフロア
- 5
- 最寄り駅
- 三田 徒歩 1分
田町センタービル の近隣のエリア・駅から探す
オフィス移転・物件探しを無料でサポートします
物件探しだけでは、オフィス移転は成功しません。
私たちは単なる「物件紹介会社」ではありません。オフィス移転にかかる費用総額を最小化する専門会社です。物件契約時の仲介手数料0円に加え、内装工事も中間マージンを排除した適正価格でご提案し、トータルコストを大幅に削減します。「希望の物件が見つからない」「移転費用を抑えたい」など、移転をお考えの方はメールまたはお電話でお気軽にご相談ください。







