- 物件番号
- 53263-59981
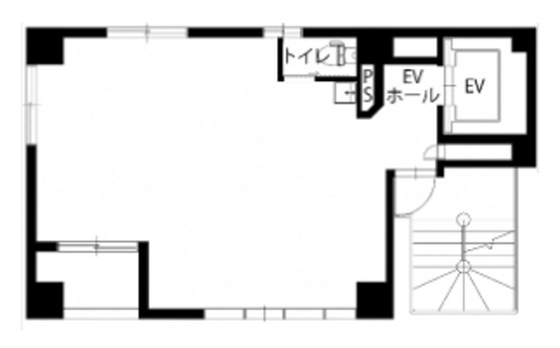
| 階数 | 2階 |
|---|---|
| 用途/仕様 | 事務所 |
| 面積 | 12.57坪(41.55㎡) |
| 賃料 | |
| 共益費 | |
| 保証金/敷金 | |
| 入居日 | |
| 所在地 | 東京都港区芝公園2-10-4 |
| 竣工 | 1983年4月 |
| 最寄り駅 |
都営三田線 芝公園 徒歩 4分 都営浅草線 大門 徒歩 5分 JR山手線 浜松町 徒歩 6分 |
| 構造 | SRC造(鉄骨鉄筋コンクリート造) |
ポイント
浜松町ウエストビルは、東京都港区芝公園2-10-4に位置するオフィスビルです。竣工は1983年で、最寄り駅は都営浅草線「大門」駅(徒歩5分)です。1フロア1テナントのオフィスビルで、2014年にエントランスや水回りなどをリニューアル。2~6階は各12坪程度のオフィス、7~9階はメゾネットタイプの一括貸しとなっています。
無料相談で理想のオフィスを見つけましょう
東京で賃貸オフィスをお探しなら、仲介手数料0円の東京オフィスチェックにお任せください。
移転をお考えの方も、お迷いの方も、メールフォームやお電話でお気軽にご相談ください。
浜松町ウエストビル のアクセス
浜松町ウエストビル の募集中区画
| 階数 | 面積 | 賃料 | 共益費 | 保証金/敷金 | 入居可能日 | 検討リスト | 詳細 |
|---|---|---|---|---|---|---|---|
| 4階 | 12.57坪 | 235,000円 | 込 | 4ヶ月 | 2026/6/15 | 詳細 > 浜松町ウエストビル 4 (41.55㎡) |港区 の賃貸オフィス・セットアップオフィス |
この区画にオススメのレイアウト
-
オフィスサンプルレイアウト98
- 広さ
- 14.7坪(49㎡)
- 会議室
- あり
- 従業員数
- 4
-
オフィスサンプルレイアウト70
- 広さ
- 14.4坪(48㎡)
- 会議室
- あり
- 従業員数
- 5
-
オフィスサンプルレイアウト64
- 広さ
- 16.8坪(56㎡)
- 会議室
- あり
- 従業員数
- 5
-
オフィスサンプルレイアウト61
- 広さ
- 15.6坪(52㎡)
- 会議室
- あり
- 従業員数
- 7
浜松町ウエストビル の条件に近い物件
-
ヒルトップ高輪
東京都港区高輪1-5-19
- 面積
- 12.13坪 〜
- 空きフロア
- 1
- 最寄り駅
- 泉岳寺 徒歩 3分
-
ライオンズ三田
東京都港区芝4-6-16
- 面積
- 28.75坪 〜
- 空きフロア
- 2
- 最寄り駅
- 三田 徒歩 4分
-
マスマンビル
東京都港区芝2-27-8
- 面積
- 29.21坪 〜
- 空きフロア
- 1
- 最寄り駅
- 浜松町 徒歩 7分
-
サニーポート芝
東京都港区芝2-5-10
- 面積
- 26.41坪 〜
- 空きフロア
- 1
- 最寄り駅
- 芝公園 徒歩 3分
浜松町ウエストビル の近隣のエリア・駅から探す
オフィス移転・物件探しを無料でサポートします
物件探しだけでは、オフィス移転は成功しません。
私たちは単なる「物件紹介会社」ではありません。オフィス移転にかかる費用総額を最小化する専門会社です。物件契約時の仲介手数料0円に加え、内装工事も中間マージンを排除した適正価格でご提案し、トータルコストを大幅に削減します。「希望の物件が見つからない」「移転費用を抑えたい」など、移転をお考えの方はメールまたはお電話でお気軽にご相談ください。




