- 物件番号
- 53209-72335
| 階数 | 6階 |
|---|---|
| 用途/仕様 | 事務所 |
| 面積 | 26.86坪(88.79㎡) |
| 賃料 | |
| 共益費 | |
| 保証金/敷金 | |
| 入居日 | |
| 所在地 | 東京都港区新橋4-24-11 |
| 竣工 | 1990年4月 |
| 最寄り駅 |
JR山手線 新橋 徒歩 5分 都営大江戸線 汐留 徒歩 8分 ゆりかもめ 汐留 徒歩 8分 |
| 構造 | S造(鉄骨造) |
ポイント
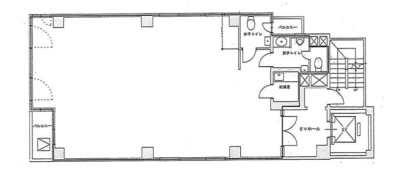
TKK新橋ビルは東京都港区新橋4-24-11に位置するオフィスビルです。竣工は1990年で、最寄り駅は都営大江戸線「汐留」駅(徒歩8分)です。新耐震基準を満たしており、安全性も確保されています。最寄駅は「新橋」駅で、「内幸町」駅や「汐留」駅も利用可能。長方形の間取りでレイアウトがしやすく、機械警備も設置されているためセキュリティ面も充実しています。
無料相談で理想のオフィスを見つけましょう
東京で賃貸オフィスをお探しなら、仲介手数料0円の東京オフィスチェックにお任せください。
移転をお考えの方も、お迷いの方も、メールフォームやお電話でお気軽にご相談ください。
TKK新橋ビル のアクセス
TKK新橋ビル の募集中区画
| 階数 | 面積 | 賃料 | 共益費 | 保証金/敷金 | 入居可能日 | 検討リスト | 詳細 | 問合せ |
|---|---|---|---|---|---|---|---|---|
| 1階 | 12.41坪 | 相談 | 込 | 10ヶ月 | 即 | 詳細 > TKK新橋ビル 1 (41.02㎡) |港区 の賃貸オフィス・セットアップオフィス | お問い合わせ > | |
| 4階 | 26.86坪 | 相談 | 込 | 10ヶ月 | 即 | 詳細 > TKK新橋ビル 4 (88.79㎡) |港区 の賃貸オフィス・セットアップオフィス | お問い合わせ > |
この区画にオススメのレイアウト
-
オフィスサンプルレイアウト120
- 広さ
- 30.2坪(100㎡)
- 会議室
- あり
- 従業員数
- 12
-
オフィスサンプルレイアウト118
- 広さ
- 40.2坪(133㎡)
- 会議室
- なし
- 従業員数
- 20
-
オフィスサンプルレイアウト117
- 広さ
- 22.6坪(75㎡)
- 会議室
- あり
- 従業員数
- 11
-
オフィスサンプルレイアウト116
- 広さ
- 39.9坪(132㎡)
- 会議室
- あり
- 従業員数
- 11
TKK新橋ビル の条件に近い物件
-
(仮称)西新橋2-5ビル
東京都港区西新橋2-12
- 面積
- 81.39坪 〜
- 空きフロア
- 13
- 最寄り駅
- 内幸町 徒歩 4分
-
山田ビル
東京都港区新橋5-8-9
- 面積
- 10.8坪 〜
- 空きフロア
- 1
- 最寄り駅
- 新橋 徒歩 7分
-
新橋エンタービル
東京都港区新橋5-8-11
- 面積
- 41.44坪 〜
- 空きフロア
- 1
- 最寄り駅
- 新橋 徒歩 6分
-
アソルティ新橋四丁目
東京都港区新橋4-24-10
- 面積
- 11.5坪 〜
- 空きフロア
- 3
- 最寄り駅
- 御成門 徒歩 5分
TKK新橋ビル の近隣のエリア・駅から探す
オフィス移転・物件探しを無料でサポートします
物件探しだけでは、オフィス移転は成功しません。
私たちは単なる「物件紹介会社」ではありません。オフィス移転にかかる費用総額を最小化する専門会社です。物件契約時の仲介手数料0円に加え、内装工事も中間マージンを排除した適正価格でご提案し、トータルコストを大幅に削減します。「希望の物件が見つからない」「移転費用を抑えたい」など、移転をお考えの方はメールまたはお電話でお気軽にご相談ください。



