- 物件番号
- 52318
新着
| 所在地 | 東京都中央区八重洲1 |
|---|---|
| 竣工 | 2026年7月 |
| 最寄り駅 |
JR山手線 東京 徒歩 1分 東京メトロ銀座線 日本橋 徒歩 5分 東京メトロ東西線 日本橋 徒歩 5分 都営浅草線 日本橋 徒歩 5分 |
| 構造 | - |
| 階数 | 地上10階/地下2階 |
| エレベータ | 4基 |
| 空調 | 個別空調 |
| トイレ | 男女別 |
| 警備 | なし |
| 使用時間 | - |
ポイント
中央区八重洲1丁目に建設予定の賃貸オフィスビルです。貸付面積は110坪で、JR山手線「東京駅」から徒歩1分とアクセス抜群です。他にも銀座線日本橋駅や東西線日本橋駅など、複数駅利用可能です。令和8年2月に建築工事完了の予定です。現代的なデザインで、目を引く外観です。10階建ての建物でエレベーターもございます。中央区、「八重洲エリア」でオフィスをお探しの企業様は是非ご検討ください。
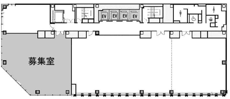
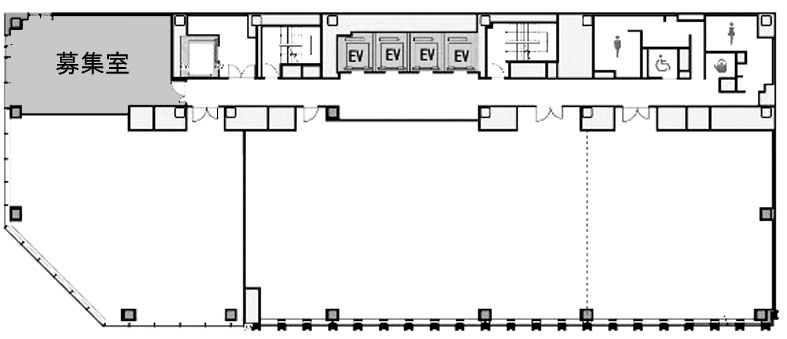
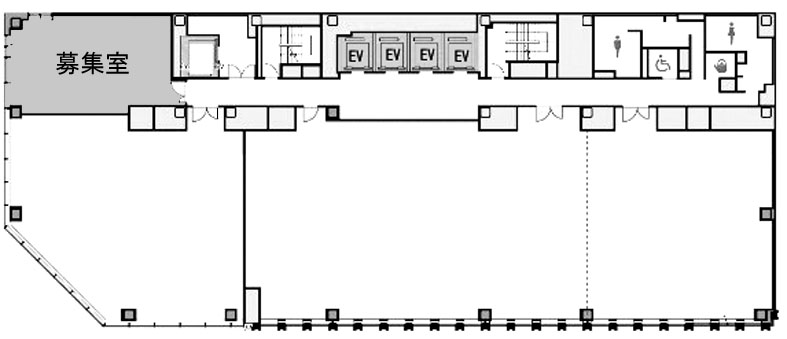
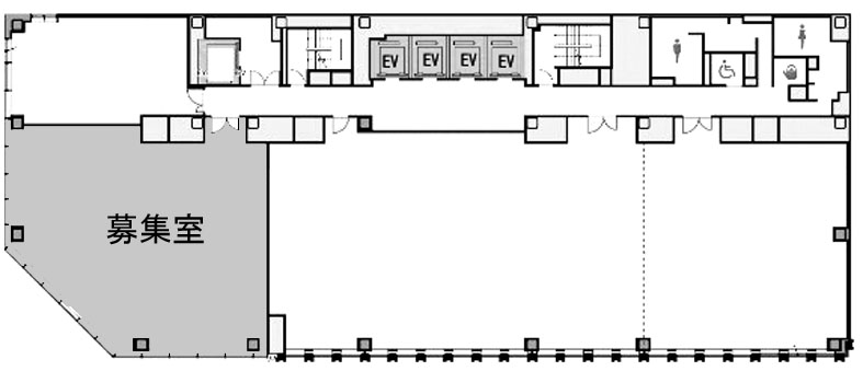
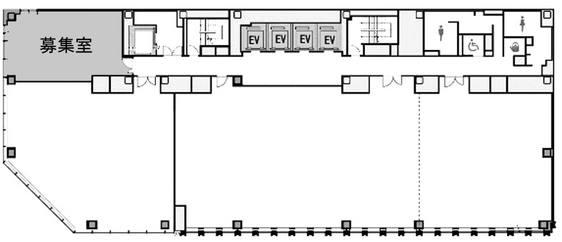
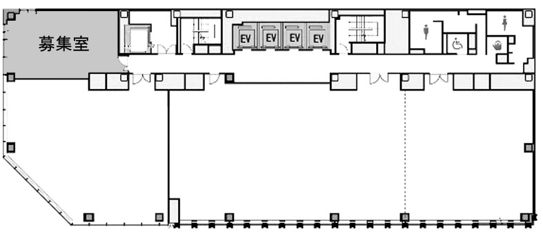
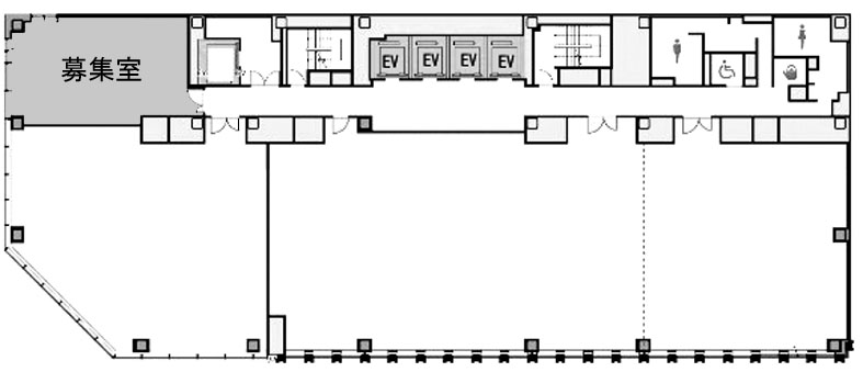
TOFROM YAESU THE FRONT の募集中区画
無料相談で理想のオフィスを見つけましょう
東京で賃貸オフィスをお探しなら、仲介手数料0円の東京オフィスチェックにお任せください。
移転をお考えの方も、お迷いの方も、メールフォームやお電話でお気軽にご相談ください。
TOFROM YAESU THE FRONT のアクセス
TOFROM YAESU THE FRONT の近隣のエリア・駅から探す
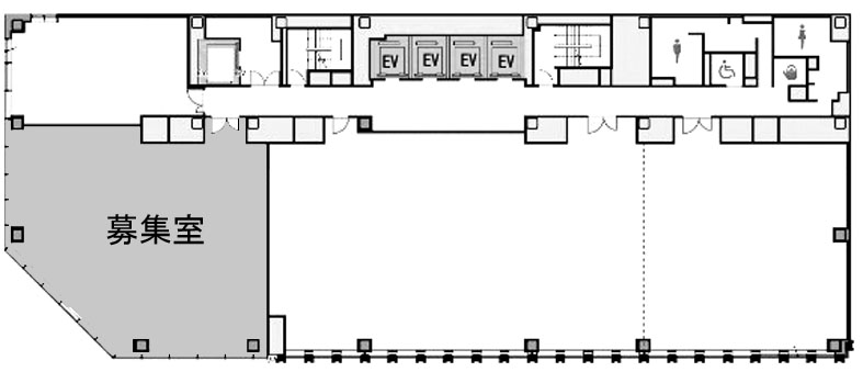
TOFROM YAESU THE FRONT の募集終了区画
TOFROM YAESU THE FRONT の条件に近い物件
オフィス移転・物件探しを無料でサポートします
物件探しだけでは、オフィス移転は成功しません。
私たちは単なる「物件紹介会社」ではありません。オフィス移転にかかる費用総額を最小化する専門会社です。物件契約時の仲介手数料0円に加え、内装工事も中間マージンを排除した適正価格でご提案し、トータルコストを大幅に削減します。「希望の物件が見つからない」「移転費用を抑えたい」など、移転をお考えの方はメールまたはお電話でお気軽にご相談ください。
