- 物件番号
- 52275-66848
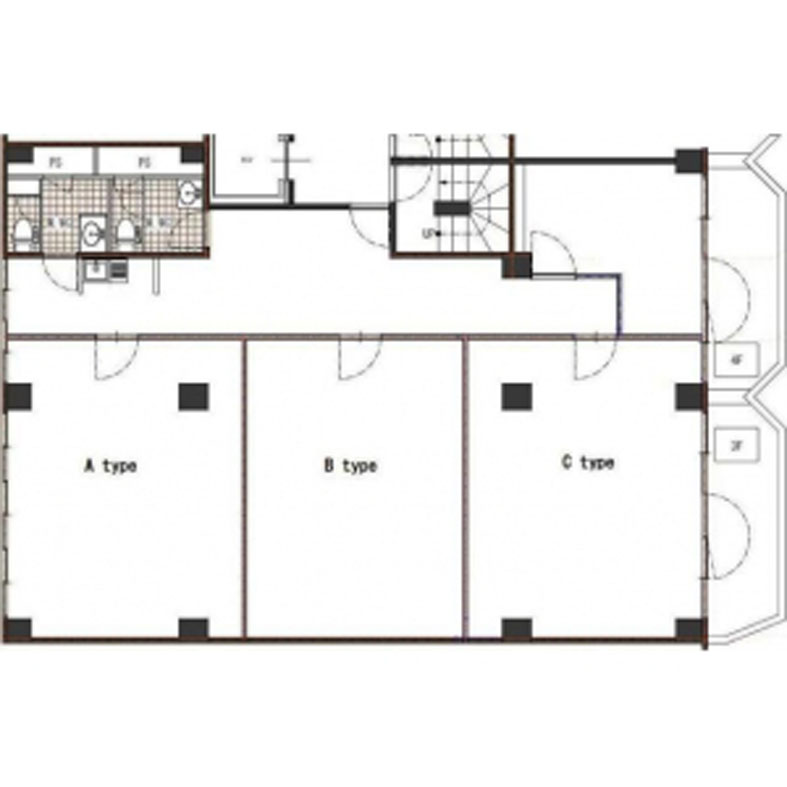
| 階数 | 3C |
|---|---|
| 用途/仕様 | 事務所 |
| 面積 | 13.50坪(44.63㎡) |
| 賃料 | |
| 共益費 | |
| 保証金/敷金 | |
| 入居日 | |
| 所在地 | 東京都千代田区六番町3-11 |
| 竣工 | 1979年9月 |
| 最寄り駅 |
東京メトロ有楽町線 麹町 徒歩 2分 都営新宿線 市ヶ谷 徒歩 5分 東京メトロ丸ノ内線 四ツ谷 徒歩 8分 |
| 構造 | SRC造(鉄骨鉄筋コンクリート造) |
ポイント
千代田区六番町にある賃貸オフィスビルです。貸付面積は約22坪で、有楽町線「麹町駅」から徒歩2分とアクセス抜群です。他にも丸ノ内線四ツ谷駅や都営新宿線市ヶ谷駅など、複数駅利用可能です。日テレ通り沿いに立地し、外観がレンガ調です。24時間使用可能です。周囲にはコンビニや飲食店も多くございます。6階建ての建物でエレベーターもございます。千代田区、「六番町エリア」でオフィスをお探しの企業様は是非ご検討ください。
無料相談で理想のオフィスを見つけましょう
東京で賃貸オフィスをお探しなら、仲介手数料0円の東京オフィスチェックにお任せください。
移転をお考えの方も、お迷いの方も、メールフォームやお電話でお気軽にご相談ください。
玉柳ビル(テシコ六番町ビル) のアクセス
玉柳ビル(テシコ六番町ビル) の募集中区画
現在、他に募集中の区画はありません
この区画にオススメのレイアウト
-
オフィスサンプルレイアウト98
- 広さ
- 14.7坪(49㎡)
- 会議室
- あり
- 従業員数
- 4
-
オフィスサンプルレイアウト70
- 広さ
- 14.4坪(48㎡)
- 会議室
- あり
- 従業員数
- 5
-
オフィスサンプルレイアウト64
- 広さ
- 16.8坪(56㎡)
- 会議室
- あり
- 従業員数
- 5
-
オフィスサンプルレイアウト61
- 広さ
- 15.6坪(52㎡)
- 会議室
- あり
- 従業員数
- 7
玉柳ビル(テシコ六番町ビル) の条件に近い物件
-
山王グランドビル
東京都千代田区永田町2-14-2
- 面積
- 27.31坪 〜
- 空きフロア
- 68
- 最寄り駅
- 赤坂見附 徒歩 2分
-
パレスサイド千代田
東京都千代田区隼町2-17
- 面積
- 27.33坪 〜
- 空きフロア
- 1
- 最寄り駅
- 半蔵門 徒歩 1分
-
FDC麹町ビル
東京都千代田区麹町2-3-3
- 面積
- 62.94坪 〜
- 空きフロア
- 1
- 最寄り駅
- 半蔵門 徒歩 1分
-
明治薬科大学 剛堂会館
東京都千代田区紀尾井町3-27
- 面積
- 坪 〜
- 空きフロア
- 0
- 最寄り駅
- 麹町 徒歩 3分
玉柳ビル(テシコ六番町ビル) の近隣のエリア・駅から探す
オフィス移転・物件探しを無料でサポートします
物件探しだけでは、オフィス移転は成功しません。
私たちは単なる「物件紹介会社」ではありません。オフィス移転にかかる費用総額を最小化する専門会社です。物件契約時の仲介手数料0円に加え、内装工事も中間マージンを排除した適正価格でご提案し、トータルコストを大幅に削減します。「希望の物件が見つからない」「移転費用を抑えたい」など、移転をお考えの方はメールまたはお電話でお気軽にご相談ください。




