- 物件番号
- 298359-305434
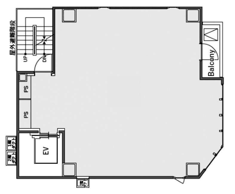
| 階数 | 2階 |
|---|---|
| 用途/仕様 | 事務所・店舗 |
| 面積 | 19.05坪(62.98㎡) |
| 賃料 | |
| 共益費 | |
| 保証金/敷金 | |
| 入居日 | 即 |
| 所在地 | 神奈川県横浜市中区常盤町5-68 |
| 竣工 | 2025年12月 |
| 最寄り駅 |
ブルーライン 関内 徒歩 2分 みなとみらい線 馬車道 徒歩 5分 |
| 構造 | S造(鉄骨造) |
ポイント
SYLA BASHAMICHIは、横浜市中区に位置するS造10階建てのオフィスビルで、2025年12月に竣工予定の新築物件です。JR根岸線関内駅およびみなとみらい線馬車道駅から徒歩圏内の好立地にございます。
関内・馬車道エリアは横浜で最も歴史あるビジネス街で、神奈川県庁・横浜市役所・横浜地方裁判所・横浜税関などが集約された官庁街としても知られております。馬車道は幕末の開港以来の歴史を持ち、昭和初期の西洋建築が残る異国情緒あふれるエリアです。
周辺にはみなとみらい地区や赤レンガ倉庫、中華街などの観光スポットも近接しております。新築ビルならではの最新設備が期待でき、横浜の中心地でブランド力のあるオフィスをお求めの企業に適した物件です。
無料相談で理想のオフィスを見つけましょう
東京で賃貸オフィスをお探しなら、仲介手数料0円の東京オフィスチェックにお任せください。
移転をお考えの方も、お迷いの方も、メールフォームやお電話でお気軽にご相談ください。
SYLA BASHAMICHI のアクセス
SYLA BASHAMICHI の募集中区画
| 階数 | 面積 | 賃料 | 共益費 | 保証金/敷金 | 入居可能日 | 検討リスト | 詳細 | 問合せ |
|---|---|---|---|---|---|---|---|---|
| 9階 | 19.05坪 | 503,987円 | 込 | 6ヶ月 | 即 | 詳細 > SYLA BASHAMICHI 9 (62.98㎡) |その他(神奈川) の賃貸オフィス・セットアップオフィス | お問い合わせ > |
この区画にオススメのレイアウト
-
オフィスサンプルレイアウト98
- 広さ
- 14.7坪(49㎡)
- 会議室
- あり
- 従業員数
- 4
-
オフィスサンプルレイアウト70
- 広さ
- 14.4坪(48㎡)
- 会議室
- あり
- 従業員数
- 5
-
オフィスサンプルレイアウト64
- 広さ
- 16.8坪(56㎡)
- 会議室
- あり
- 従業員数
- 5
-
オフィスサンプルレイアウト61
- 広さ
- 15.6坪(52㎡)
- 会議室
- あり
- 従業員数
- 7
SYLA BASHAMICHI の条件に近い物件
-
アクアリアタワー横浜
神奈川県横浜市神奈川区新浦島町1-1-32
- 面積
- 256.44坪 〜
- 空きフロア
- 42
- 最寄り駅
- 神奈川新町 徒歩 8分
-
ベルフェリーク横濱山下町
神奈川県横浜市中区山下町127-1
- 面積
- 23.52坪 〜
- 空きフロア
- 1
- 最寄り駅
- 元町・中華街 徒歩 6分
-
メゾン滝頭
神奈川県横浜市磯子区丸山2-20-16
- 面積
- 17.1坪 〜
- 空きフロア
- 1
- 最寄り駅
- 根岸 徒歩 22分
-
横浜ウエストサイドビル
神奈川県横浜市西区北幸2-15-10
- 面積
- 55.71坪 〜
- 空きフロア
- 1
- 最寄り駅
- 横浜 徒歩 11分
SYLA BASHAMICHI の近隣のエリア・駅から探す
オフィス移転・物件探しを無料でサポートします
物件探しだけでは、オフィス移転は成功しません。
私たちは単なる「物件紹介会社」ではありません。オフィス移転にかかる費用総額を最小化する専門会社です。物件契約時の仲介手数料0円に加え、内装工事も中間マージンを排除した適正価格でご提案し、トータルコストを大幅に削減します。「希望の物件が見つからない」「移転費用を抑えたい」など、移転をお考えの方はメールまたはお電話でお気軽にご相談ください。
