- 物件番号
- 296145-305041
新着
| 階数 | 5階 |
|---|---|
| 用途/仕様 | 事務所・店舗 |
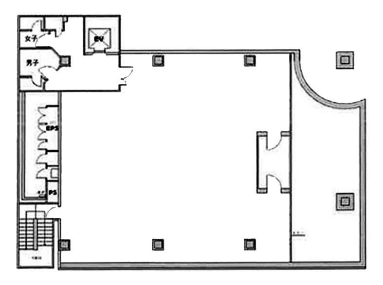
| 面積 | 63.54坪(210.05㎡) |
| 賃料 | 1,461,420円(23,000円/坪) |
| 共益費 | 254,160円 |
| 保証金/敷金 | 12ヶ月 |
| 入居日 | 2026/7/上 |
| 所在地 | 東京都中央区銀座5-5-7 |
| 竣工 | 1994年6月 |
| 最寄り駅 |
東京メトロ丸ノ内線 銀座 徒歩 1分 東京メトロ銀座線 銀座 徒歩 2分 |
| 構造 | SRC造(鉄骨鉄筋コンクリート造) |
無料相談で理想のオフィスを見つけましょう
東京で賃貸オフィスをお探しなら、仲介手数料0円の東京オフィスチェックにお任せください。
移転をお考えの方も、お迷いの方も、メールフォームやお電話でお気軽にご相談ください。
ニューギンザビル6号館 のアクセス
ニューギンザビル6号館 の募集中区画
| 階数 | 面積 | 賃料 | 共益費 | 保証金/敷金 | 入居可能日 | 検討リスト | 詳細 |
|---|---|---|---|---|---|---|---|
|
新着 5階 |
63.54坪 | 1,461,420円 | 254,160円 | 12ヶ月 | 2026/7/上 | 詳細 > ニューギンザビル6号館 5 (210.05㎡) |中央区 の賃貸オフィス・セットアップオフィス |
この区画にオススメのレイアウト
-
オフィスサンプルレイアウト123
- 広さ
- 53.5坪(177㎡)
- 会議室
- あり
- 従業員数
- 11
-
オフィスサンプルレイアウト119
- 広さ
- 85坪(281㎡)
- 会議室
- あり
- 従業員数
- 31
-
オフィスサンプルレイアウト112
- 広さ
- 71.3坪(236㎡)
- 会議室
- あり
- 従業員数
- 33
-
オフィスサンプルレイアウト111
- 広さ
- 85.5坪(283㎡)
- 会議室
- あり
- 従業員数
- 31
ニューギンザビル6号館 の条件に近い物件
-
銀座プルミエビル
東京都中央区銀座1-8-2
- 面積
- 31.52坪 〜
- 空きフロア
- 2
- 最寄り駅
- 京橋 徒歩 2分
-
ニューギンザビル8号館
東京都中央区銀座7-5-12
- 面積
- 11.28坪 〜
- 空きフロア
- 1
- 最寄り駅
- 銀座 徒歩 6分
-
サンリット銀座ビルIII
東京都中央区銀座5-14-14
- 面積
- 21.18坪 〜
- 空きフロア
- 1
- 最寄り駅
- 東銀座 徒歩 1分
-
LANDPOOL GINZA
東京都中央区銀座7-2-13
- 面積
- 55.31坪 〜
- 空きフロア
- 1
- 最寄り駅
- 銀座 徒歩 5分
ニューギンザビル6号館 の近隣のエリア・駅から探す
オフィス移転・物件探しを無料でサポートします
物件探しだけでは、オフィス移転は成功しません。
私たちは単なる「物件紹介会社」ではありません。オフィス移転にかかる費用総額を最小化する専門会社です。物件契約時の仲介手数料0円に加え、内装工事も中間マージンを排除した適正価格でご提案し、トータルコストを大幅に削減します。「希望の物件が見つからない」「移転費用を抑えたい」など、移転をお考えの方はメールまたはお電話でお気軽にご相談ください。
