- 物件番号
- 295091-304853
| 階数 | 4階 |
|---|---|
| 用途/仕様 | 事務所 |
| 面積 | 109.03坪(360.43㎡) |
| 賃料 | 相談 |
| 共益費 | 込 |
| 保証金/敷金 | 6ヶ月 |
| 入居日 | 2027/春 |
| 所在地 | 東京都中央区日本橋人形町3 |
| 竣工 | 2027年1月 |
| 最寄り駅 |
東京メトロ日比谷線 人形町 徒歩 1分 都営浅草線 人形町 徒歩 1分 東京メトロ半蔵門線 水天宮前 徒歩 5分 都営新宿線 浜町 徒歩 7分 |
| 構造 | S造(鉄骨造) |
ポイント
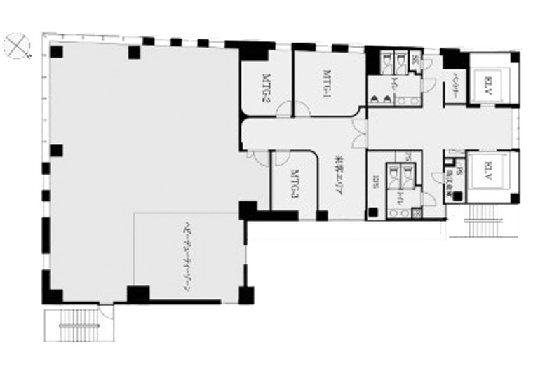
スイテ日本橋人形町は、中央区日本橋人形町3丁目に位置するS造地上11階建ての新築オフィスビルで、2027年春に竣工予定です。阪急阪神不動産の中規模オフィスシリーズ「SUITE」の第3号物件で、基準階面積は約110坪、延床面積は約4,300平方メートルです。
天井高2,700mm、OAフロア40mmの開放的な執務空間に、個別空調や非接触型ICカードセキュリティを完備。Low-E複層ガラスで省エネを実現し、24時間対応の非常用発電機や各階の防災備蓄倉庫などBCP対策も充実しています。3タイプのハーフセットアップオフィスを用意し、ラウンジや屋上テラスなどの共用空間も備えています。
東京メトロ日比谷線・都営浅草線の人形町駅から徒歩1分、半蔵門線水天宮前駅から徒歩5分です。人形町は老舗の飲食店が軒を連ねる下町情緒あふれるエリアです。
無料相談で理想のオフィスを見つけましょう
東京で賃貸オフィスをお探しなら、仲介手数料0円の東京オフィスチェックにお任せください。
移転をお考えの方も、お迷いの方も、メールフォームやお電話でお気軽にご相談ください。
スイテ日本橋人形町 のアクセス
スイテ日本橋人形町 の募集中区画
| 階数 | 面積 | 賃料 | 共益費 | 保証金/敷金 | 入居可能日 | 検討リスト | 詳細 | 問合せ |
|---|---|---|---|---|---|---|---|---|
|
新着 2階 |
109.03坪 | 相談 | 込 | 6ヶ月 | 2027/春 | 詳細 > スイテ日本橋人形町 2 (360.43㎡) |中央区 の賃貸オフィス・セットアップオフィス | お問い合わせ > | |
|
新着 3階 |
109.03坪 | 相談 | 込 | 6ヶ月 | 2027/春 | 詳細 > スイテ日本橋人形町 3 (360.43㎡) |中央区 の賃貸オフィス・セットアップオフィス | お問い合わせ > | |
|
新着 4階 |
109.03坪 | 相談 | 込 | 6ヶ月 | 2027/春 | 詳細 > スイテ日本橋人形町 4 (360.43㎡) |中央区 の賃貸オフィス・セットアップオフィス | お問い合わせ > | |
|
新着 5階 |
109.03坪 | 相談 | 込 | 6ヶ月 | 2027/春 | 詳細 > スイテ日本橋人形町 5 (360.43㎡) |中央区 の賃貸オフィス・セットアップオフィス | お問い合わせ > | |
|
新着 6階 |
109.03坪 | 相談 | 込 | 6ヶ月 | 2027/春 | 詳細 > スイテ日本橋人形町 6 (360.43㎡) |中央区 の賃貸オフィス・セットアップオフィス | お問い合わせ > | |
|
新着 9階 |
109.03坪 | 相談 | 込 | 6ヶ月 | 2027/春 | 詳細 > スイテ日本橋人形町 9 (360.43㎡) |中央区 の賃貸オフィス・セットアップオフィス | お問い合わせ > | |
|
新着 10階 |
109.03坪 | 相談 | 込 | 6ヶ月 | 2027/春 | 詳細 > スイテ日本橋人形町 10 (360.43㎡) |中央区 の賃貸オフィス・セットアップオフィス | お問い合わせ > | |
|
新着 11階 |
89.47坪 | 相談 | 込 | 6ヶ月 | 2027/春 | 詳細 > スイテ日本橋人形町 11 (295.77㎡) |中央区 の賃貸オフィス・セットアップオフィス | お問い合わせ > |
この区画にオススメのレイアウト
-
オフィスサンプルレイアウト122
- 広さ
- 159.4坪(527㎡)
- 会議室
- あり
- 従業員数
- 50
-
オフィスサンプルレイアウト121
- 広さ
- 189.5坪(627㎡)
- 会議室
- あり
- 従業員数
- 80
-
オフィスサンプルレイアウト113
- 広さ
- 113.4坪(375㎡)
- 会議室
- あり
- 従業員数
- 84
-
オフィスサンプルレイアウト107
- 広さ
- 260.7坪(862㎡)
- 会議室
- あり
- 従業員数
- 96
スイテ日本橋人形町 の条件に近い物件
-
Eビル
東京都中央区新川2-17-12
- 面積
- 21.1坪 〜
- 空きフロア
- 1
- 最寄り駅
- 八丁堀 徒歩 5分
-
新川I&Lビル
東京都中央区新川1-22-13
- 面積
- 37.95坪 〜
- 空きフロア
- 2
- 最寄り駅
- 茅場町 徒歩 6分
-
住友不動産茅場町ビル2号館
東京都中央区新川2-26-3
- 面積
- 坪 〜
- 空きフロア
- 0
- 最寄り駅
- 八丁堀 徒歩 6分
-
アライズ第2ビル
東京都中央区日本橋箱崎町5-4
- 面積
- 52.8坪 〜
- 空きフロア
- 1
- 最寄り駅
- 茅場町 徒歩 5分
スイテ日本橋人形町 の近隣のエリア・駅から探す
オフィス移転・物件探しを無料でサポートします
物件探しだけでは、オフィス移転は成功しません。
私たちは単なる「物件紹介会社」ではありません。オフィス移転にかかる費用総額を最小化する専門会社です。物件契約時の仲介手数料0円に加え、内装工事も中間マージンを排除した適正価格でご提案し、トータルコストを大幅に削減します。「希望の物件が見つからない」「移転費用を抑えたい」など、移転をお考えの方はメールまたはお電話でお気軽にご相談ください。
