- 物件番号
- 260178-266144
| 階数 | 304 |
|---|---|
| 用途/仕様 | 事務所・店舗 |
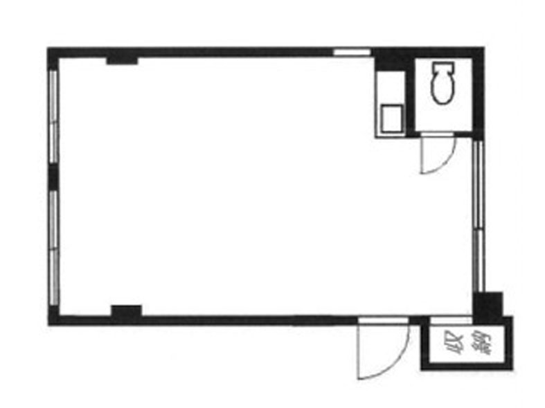
| 面積 | 15.00坪(49.59㎡) |
| 賃料 | |
| 共益費 | |
| 保証金/敷金 | |
| 入居日 | 即 |
| 所在地 | 東京都港区西麻布1-10-16 |
| 竣工 | 1970年1月 |
| 最寄り駅 |
東京メトロ千代田線 乃木坂 徒歩 7分 東京メトロ日比谷線 六本木 徒歩 8分 |
| 構造 | RC造(鉄筋コンクリート造) |
ポイント
西麻布ロイヤルビルは、港区西麻布1丁目に位置するRC造地上7階・地下1階建ての賃貸オフィスビルです。乃木坂駅から徒歩7分、六本木駅から徒歩8分の立地にあります。
基準階面積は約138坪と広く、正方形に近い使いやすい間取りが特徴です。周辺は閑静な住宅街で青山公園にも近く緑豊かな環境です。
西麻布エリアは飲食店やギャラリーも点在する洗練された街並みが魅力です。
無料相談で理想のオフィスを見つけましょう
東京で賃貸オフィスをお探しなら、仲介手数料0円の東京オフィスチェックにお任せください。
移転をお考えの方も、お迷いの方も、メールフォームやお電話でお気軽にご相談ください。
西麻布ロイヤルビル のアクセス
西麻布ロイヤルビル の募集中区画
現在、他に募集中の区画はありません
この区画にオススメのレイアウト
-
オフィスサンプルレイアウト98
- 広さ
- 14.7坪(49㎡)
- 会議室
- あり
- 従業員数
- 4
-
オフィスサンプルレイアウト70
- 広さ
- 14.4坪(48㎡)
- 会議室
- あり
- 従業員数
- 5
-
オフィスサンプルレイアウト64
- 広さ
- 16.8坪(56㎡)
- 会議室
- あり
- 従業員数
- 5
-
オフィスサンプルレイアウト61
- 広さ
- 15.6坪(52㎡)
- 会議室
- あり
- 従業員数
- 7
西麻布ロイヤルビル の条件に近い物件
-
エル麻布矢島ビル
東京都港区麻布十番2-8-8
- 面積
- 14.07坪 〜
- 空きフロア
- 1
- 最寄り駅
- 麻布十番 徒歩 2分
-
野沢ビル
東京都港区六本木3-11-6
- 面積
- 15坪 〜
- 空きフロア
- 1
- 最寄り駅
- 六本木 徒歩 2分
-
ソレアード六本木
東京都港区六本木3-3-17
- 面積
- 31.47坪 〜
- 空きフロア
- 1
- 最寄り駅
- 六本木一丁目 徒歩 3分
-
六本木グランドプラザ
東京都港区六本木3-1-25
- 面積
- 坪 〜
- 空きフロア
- 0
- 最寄り駅
- 六本木一丁目 徒歩 1分
西麻布ロイヤルビル の近隣のエリア・駅から探す
オフィス移転・物件探しを無料でサポートします
物件探しだけでは、オフィス移転は成功しません。
私たちは単なる「物件紹介会社」ではありません。オフィス移転にかかる費用総額を最小化する専門会社です。物件契約時の仲介手数料0円に加え、内装工事も中間マージンを排除した適正価格でご提案し、トータルコストを大幅に削減します。「希望の物件が見つからない」「移転費用を抑えたい」など、移転をお考えの方はメールまたはお電話でお気軽にご相談ください。




