- 物件番号
- 249556
| 所在地 | 神奈川県横浜市港北区新横浜3-20-8 |
|---|---|
| 竣工 | 1994年3月 |
| 最寄り駅 |
ブルーライン 新横浜 徒歩 4分 JR横浜線 新横浜 徒歩 5分 |
| 構造 | S造(鉄骨造) |
| 階数 | 地上12階/地下1階 |
| エレベータ | - |
| 空調 | セントラル空調 |
| トイレ | 男女別 |
| 警備 | 機械警備 |
| 使用時間 | 24時間使用可 |
ポイント
べネックスS-3は、横浜市港北区新横浜3丁目に位置する地上12階・地下1階建ての鉄骨造オフィスビルです。1994年竣工の新耐震基準適合物件で、JR横浜線・横浜市営地下鉄ブルーライン新横浜駅から徒歩4分という優れた交通アクセスを誇ります。全面ガラス張りの洗練された外観が特徴で、エントランスには天然石をふんだんに使用した格調高いホールが設けられています。
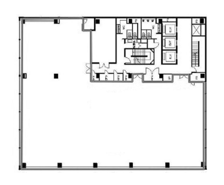
館内にはエレベーターが3基(15人乗り乗用2基、17人乗り非常用1基)設置されており、基準階貸室面積は約201坪の大型フロアとなっています。天井高2,700mm、OAフロア完備、個別空調、光ファイバー導入済みと、現代のオフィスニーズに対応した充実の設備仕様です。無柱のオープンなフロア構成により、レイアウトの自由度が高い点も魅力です。
エントランス開放時間は平日7時30分から19時、土曜8時から17時で、機械警備により24時間利用が可能です。敷地内には30台分の駐車場も確保されています。新横浜駅周辺はビジネス街として発展しており、駅ビルのキュービックプラザをはじめ飲食店が充実し、オフィスワーカーのランチや会食にも便利な環境が整っています。
べネックスS-3 の募集中区画
| 階数 | 面積(坪) | 賃料(円) | 共益費 | 保証金/敷金 | 入居可能日 | 検討リスト | 詳細 | 問合せ |
|---|---|---|---|---|---|---|---|---|
| 10階 | 105.95坪 | 相談 | 込 | 12ヶ月 | 即 | 詳細 > べネックスS-3 10 (350.25㎡) |その他(神奈川) の賃貸オフィス・セットアップオフィス | お問い合わせ > | |
| 10階 | 96.39坪 | 相談 | 込 | 12ヶ月 | 即 | 詳細 > べネックスS-3 10 (318.64㎡) |その他(神奈川) の賃貸オフィス・セットアップオフィス | お問い合わせ > |
無料相談で理想のオフィスを見つけましょう
東京で賃貸オフィスをお探しなら、仲介手数料0円の東京オフィスチェックにお任せください。
移転をお考えの方も、お迷いの方も、メールフォームやお電話でお気軽にご相談ください。
べネックスS-3 のアクセス
べネックスS-3 の近隣のエリア・駅から探す
べネックスS-3 の募集終了区画
| 階数 | 面積(坪) | 賃料(円) | 共益費 | 保証金/敷金 | 入居可能日 | 詳細 |
|---|---|---|---|---|---|---|
| 10階 | 200.41坪 | ー | ー | ー | 募集終了 | 詳細 > べネックスS-3 10 (662.51㎡) |その他(神奈川) の賃貸オフィス・セットアップオフィス |
| 12階 | 38.09坪 | ー | ー | ー | 募集終了 | 詳細 > べネックスS-3 12 (125.92㎡) |その他(神奈川) の賃貸オフィス・セットアップオフィス |
べネックスS-3 の条件に近い物件
オフィス移転・物件探しを無料でサポートします
物件探しだけでは、オフィス移転は成功しません。
私たちは単なる「物件紹介会社」ではありません。オフィス移転にかかる費用総額を最小化する専門会社です。物件契約時の仲介手数料0円に加え、内装工事も中間マージンを排除した適正価格でご提案し、トータルコストを大幅に削減します。「希望の物件が見つからない」「移転費用を抑えたい」など、移転をお考えの方はメールまたはお電話でお気軽にご相談ください。


