- 物件番号
- 249400
| 所在地 | 東京都千代田区外神田3-14-10 |
|---|---|
| 竣工 | 1991年5月 |
| 最寄り駅 |
銀座線 末広町 徒歩 3分 R山手線 秋葉原 徒歩 5分 比谷線 秋葉原 徒歩 6分 |
| 構造 | SRC造(鉄骨鉄筋コンクリート造) |
| 階数 | B1/8 |
| エレベータ | 2基 |
| 空調 | 個別空調 |
| トイレ | 男女別 |
| 警備 | 機械警備 |
| 使用時間 | 24時間使用可 |
ポイント
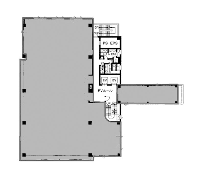
秋葉原HFビルは、東京メトロ銀座線・末広町駅から徒歩3分、JR秋葉原駅から徒歩5分の位置にある賃貸オフィスビルです。千代田区外神田3丁目に所在し、1991年に竣工した鉄骨鉄筋コンクリート造の地上8階・地下1階建てで、新耐震基準に適合しています。延床面積は約1,594坪、基準階面積は約146坪と広々としたフロアプレートを有しており、大規模なオフィスレイアウトにも対応可能です。
基準階は長方形を基本としたメインルームにエレベーターホール反対側の小部屋が付いた構造で、テナントのニーズに応じた柔軟なオフィスプランニングが可能です。エレベーターは2基設置されており、OAフロアや機械警備といった基本設備も整っています。駐車場も完備されているため、車での来客対応にも便利です。
秋葉原エリアはIT関連企業が集積する街として知られ、飲食店やコンビニエンスストアも豊富に揃っています。末広町駅周辺には多彩なジャンルのレストランがあり、ランチタイムの選択肢も充実しています。JR各線やつくばエクスプレスなど複数路線が利用できるため、交通利便性にも優れたオフィス拠点です。
秋葉原HFビル の募集中区画
現在、募集中の区画はありません
無料相談で理想のオフィスを見つけましょう
東京で賃貸オフィスをお探しなら、仲介手数料0円の東京オフィスチェックにお任せください。
移転をお考えの方も、お迷いの方も、メールフォームやお電話でお気軽にご相談ください。
秋葉原HFビル のアクセス
秋葉原HFビル の近隣のエリア・駅から探す
秋葉原HFビル の募集終了区画
| 階数 | 面積(坪) | 賃料(円) | 共益費 | 保証金/敷金 | 入居可能日 | 詳細 |
|---|---|---|---|---|---|---|
| B1階 | 13.03坪 | ー | ー | ー | 募集終了 | 詳細 > 秋葉原HFビル B1 (43.07㎡) |千代田区 の賃貸オフィス・セットアップオフィス |
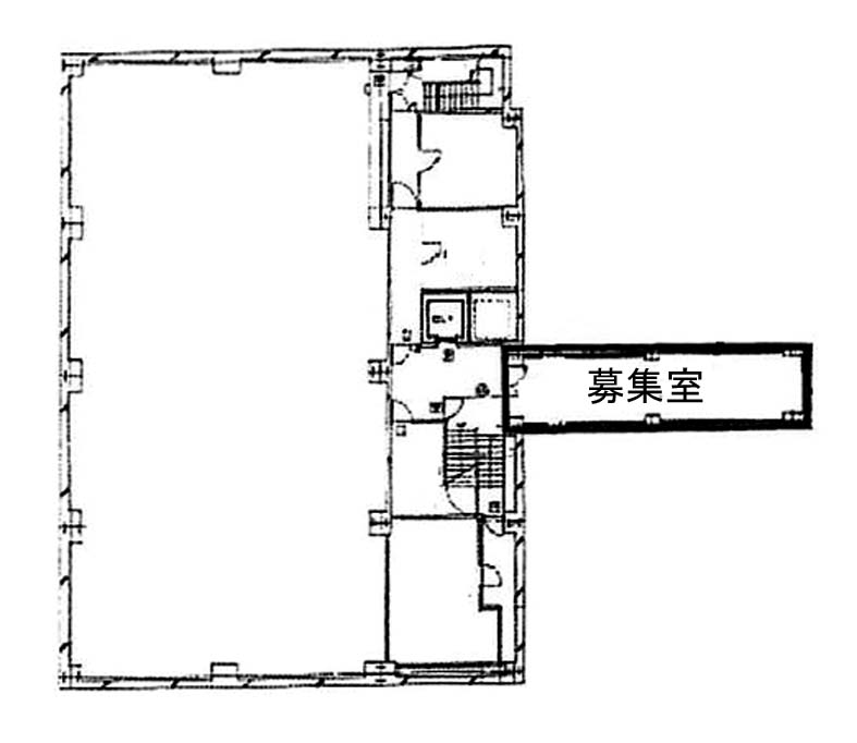
| 4階 | 14.09坪 | ー | ー | ー | 募集終了 | 詳細 > 秋葉原HFビル 4 (46.58㎡) |千代田区 の賃貸オフィス・セットアップオフィス |
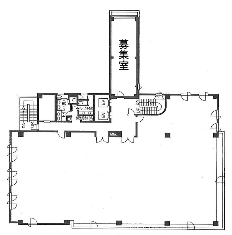
| 5階 | 146.00坪 | ー | ー | ー | 募集終了 | 詳細 > 秋葉原HFビル 5 (482.64㎡) |千代田区 の賃貸オフィス・セットアップオフィス |
秋葉原HFビル の条件に近い物件
オフィス移転・物件探しを無料でサポートします
物件探しだけでは、オフィス移転は成功しません。
私たちは単なる「物件紹介会社」ではありません。オフィス移転にかかる費用総額を最小化する専門会社です。物件契約時の仲介手数料0円に加え、内装工事も中間マージンを排除した適正価格でご提案し、トータルコストを大幅に削減します。「希望の物件が見つからない」「移転費用を抑えたい」など、移転をお考えの方はメールまたはお電話でお気軽にご相談ください。





