- 物件番号
- 248994
- 情報更新日
- 2025.11.12
| 所在地 | 東京都港区芝公園2-9-3 |
|---|---|
| 竣工 | 1979年12月 |
| 最寄り駅 |
都営三田線 芝公園 徒歩 3分 営浅草線 大門 徒歩 5分 R山手線 浜松町 徒歩 6分 |
| 構造 | SRC造 |
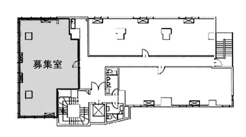
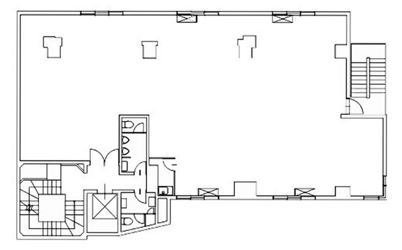
芝ロイヤービル の募集中区画
| 階数 | 面積(坪) | 賃料(円) | 共益費(円) | 預託金 | 入居可能日 | 検討リスト | 詳細 | |
|---|---|---|---|---|---|---|---|---|
![]() |
8 | 64.14 | 962,100 | 6ヶ月 | 相談 | 詳細 |
無料相談で理想のオフィスを見つけましょう
東京で賃貸オフィスをお探しなら、仲介手数料0円の東京オフィスチェックにお任せください。
移転をお考えの方も、お迷いの方も、メールフォームやお電話でお気軽にご相談ください。
芝ロイヤービル のアクセス
芝ロイヤービル の近隣のエリア・駅から探す
芝ロイヤービル の募集終了区画
| 階数 | 面積(坪) | 賃料(円) | 共益費(円) | 預託金 | 入居可能日 | 詳細 |
|---|---|---|---|---|---|---|
| 5A | 26.49 | ー | ー | ー | 募集終了 | 詳細 |
芝ロイヤービル の条件に近い物件
お問い合わせ
無料相談で理想のオフィスを見つけましょう
東京で賃貸オフィスをお探しなら、仲介手数料0円の東京オフィスチェックにお任せください。移転をお考えの方も、お迷いの方も、メールフォームやお電話でお気軽にご相談ください。

