- 物件番号
- 237063-251253
新着
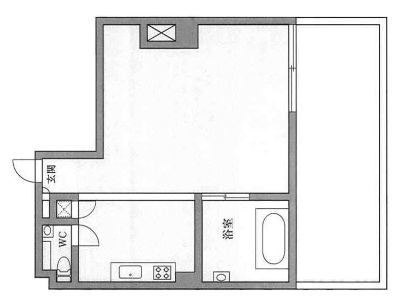
| 階数 | 5C |
|---|---|
| 用途/仕様 | 事務所・住居 |
| 面積 | 20.20坪(66.78㎡) |
| 賃料 | 250,000円(12,377円/坪) |
| 共益費 | 30,000円 |
| 保証金/敷金 | 3ヶ月 |
| 入居日 | 2026/7/上 |
| 所在地 | 東京都中央区東日本橋3-3-17 |
| 竣工 | 1969年3月 |
| 最寄り駅 |
都営浅草線 東日本橋 徒歩 1分 都営新宿線 馬喰横山 徒歩 1分 JR総武本線 馬喰町 徒歩 5分 東京メトロ日比谷線 小伝馬町 徒歩 5分 |
| 構造 | RC造(鉄筋コンクリート造) |
ポイント
Re-Know東日本橋は、東京都中央区東日本橋3丁目に位置するRC造・地上6階建て地下1階のオフィスビルです。都営浅草線東日本橋駅および都営新宿線馬喰横山駅からそれぞれ徒歩1分と駅至近の好立地を誇ります。個別空調を完備し、男女共同トイレ設置の区画もございます。周辺は日本橋横山町・馬喰町問屋街として知られる日本最大級の繊維問屋街が広がり、近年はおしゃれなカフェやショップも増加中です。両国橋や隅田川も徒歩圏内にあり、歴史と新しさが交差するビジネスエリアです。
無料相談で理想のオフィスを見つけましょう
東京で賃貸オフィスをお探しなら、仲介手数料0円の東京オフィスチェックにお任せください。
移転をお考えの方も、お迷いの方も、メールフォームやお電話でお気軽にご相談ください。
Re-Know東日本橋 のアクセス
Re-Know東日本橋 の募集中区画
| 階数 | 面積 | 賃料 | 共益費 | 保証金/敷金 | 入居可能日 | 検討リスト | 詳細 | 問合せ |
|---|---|---|---|---|---|---|---|---|
|
新着 4C |
14.20坪 | 170,000円 | 30,000円 | 3ヶ月 | 2026/7/上 | 詳細 > Re-Know東日本橋 4C (46.94㎡) |中央区 の賃貸オフィス・セットアップオフィス | お問い合わせ > | |
|
新着 5C |
20.20坪 | 250,000円 | 30,000円 | 3ヶ月 | 2026/7/上 | 詳細 > Re-Know東日本橋 5C (66.78㎡) |中央区 の賃貸オフィス・セットアップオフィス | お問い合わせ > |
この区画にオススメのレイアウト
-
オフィスサンプルレイアウト120
- 広さ
- 30.2坪(100㎡)
- 会議室
- あり
- 従業員数
- 12
-
オフィスサンプルレイアウト118
- 広さ
- 40.2坪(133㎡)
- 会議室
- なし
- 従業員数
- 20
-
オフィスサンプルレイアウト117
- 広さ
- 22.6坪(75㎡)
- 会議室
- あり
- 従業員数
- 11
-
オフィスサンプルレイアウト116
- 広さ
- 39.9坪(132㎡)
- 会議室
- あり
- 従業員数
- 11
Re-Know東日本橋 の条件に近い物件
-
東京冷凍新川ビル
東京都中央区新川1-11-11
- 面積
- 76.02坪 〜
- 空きフロア
- 1
- 最寄り駅
- 茅場町 徒歩 4分
-
NSK日本橋浜町ビル
東京都中央区日本橋浜町2-29-1
- 面積
- 坪 〜
- 空きフロア
- 0
- 最寄り駅
- 浜町 徒歩 2分
-
リガーレ日本橋人形町ANNEX
東京都中央区日本橋人形町1-11-12
- 面積
- 26.8坪 〜
- 空きフロア
- 1
- 最寄り駅
- 水天宮前 徒歩 2分
-
Eビル
東京都中央区新川2-17-12
- 面積
- 21.1坪 〜
- 空きフロア
- 1
- 最寄り駅
- 八丁堀 徒歩 5分
Re-Know東日本橋 の近隣のエリア・駅から探す
オフィス移転・物件探しを無料でサポートします
物件探しだけでは、オフィス移転は成功しません。
私たちは単なる「物件紹介会社」ではありません。オフィス移転にかかる費用総額を最小化する専門会社です。物件契約時の仲介手数料0円に加え、内装工事も中間マージンを排除した適正価格でご提案し、トータルコストを大幅に削減します。「希望の物件が見つからない」「移転費用を抑えたい」など、移転をお考えの方はメールまたはお電話でお気軽にご相談ください。


