「新横浜」徒歩5分。122坪の開放的な無柱空間「アーバンセンター新横浜」8階
全国へのスムーズなアクセス網を求める企業様へ。出張や広域ビジネスの拠点として絶大な人気を誇る「新横浜」エリアから、好条件の大型オフィス区画の募集情報をお届けいたします。
アリーナ通り沿いに堂々と佇む「アーバンセンター新横浜」にて、レイアウト効率に優れた8階・約122坪の区画が募集開始となりました。当サイト「東京オフィスチェック」をご利用いただければ、本物件も全区画「仲介手数料無料」でのご案内が可能です。初期費用を抑えた戦略的な拠点開設をサポートいたします。
※本記事は2026年2月19日時点の情報をもとに執筆しております。
※本物件の最新情報は、お問い合わせフォームからお気軽にお問い合わせください。

アーバンセンター新横浜の3つの特長
- 新幹線を含む5路線が乗り入れる、圧倒的なアクセス性
東海道新幹線やJR横浜線を始め、相鉄新横浜線、東急新横浜線、横浜市営地下鉄ブルーラインの計5路線が利用可能な「新横浜駅」から徒歩5分という至便な立地です。都心部への移動はもちろん、関西・中京方面への出張が多い企業様にとって、これ以上ない戦略的拠点となります。 - リニューアル済みの共用部と、レイアウト自在な無柱空間
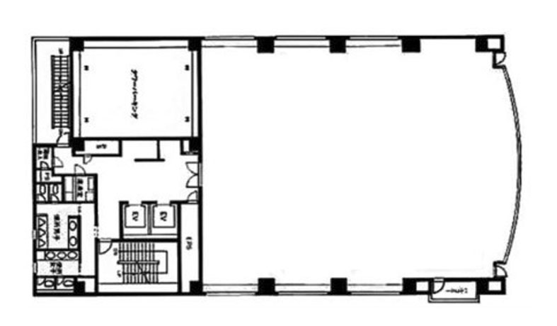
今回ご紹介する8階貸室(122.01坪)は、室内に柱がない整った長方形をしており、デスクや会議室のレイアウト効率が非常に高いのが特長です。また、大きなガラス張りの窓面が多く、採光に優れた明るく開放的なオフィス環境を実現します。さらに、エレベーターホールや男女別トイレなどの共用部は美しくリニューアルされており、ご来客時の印象も良好です。 - 充実したビジネスインフラと安心の管理体制
1992年竣工の新耐震基準適合ビルであり、OAフロアや個別空調、光回線対応といった現代のビジネスに不可欠な設備を完備しています。24時間利用可能であることに加え、機械警備と平日日中の有人管理を併用したハイブリッドなセキュリティ体制により、社員の皆様へ安心で快適なワークスペースを提供します。
アーバンセンター新横浜の募集区画
- 8階
面積:122.01坪(403.37㎡)
賃料条件:ご相談(お客様のご予算に寄り添い、条件交渉等もサポートいたします)
入居時期:即日対応可能(※詳細はお問い合わせください)
設備・仕様:無柱空間、個別空調、男女別トイレ(室外・共用部)、OAフロア、光回線対応、24時間利用可、駐車場完備(機械式)

無料相談で理想のオフィスを見つけましょう
100坪を超える大型移転となると、初期費用の負担や内装計画の難易度も上がりますが、弊社にお任せいただければ安心です。
「この広さでどのようなレイアウトが実現できるか知りたい」「周辺相場や概算の費用感だけ先に確認したい」といった初期段階のご相談も大歓迎です。経験豊富な専門スタッフが最短即日で対応いたします。メールでのお問い合わせはこちらから
東京オフィスチェックが選ばれる理由
― “探すだけ”で終わらない。移転成功まで伴走します ―
✅ 仲介手数料無料で初期費用をさらに削減
✅ 非公開物件を含む、貴社に最適な物件のご提案
✅ 使い勝手を向上させるレイアウト・内装の無料提案






