- 物件番号
- 99989-256320
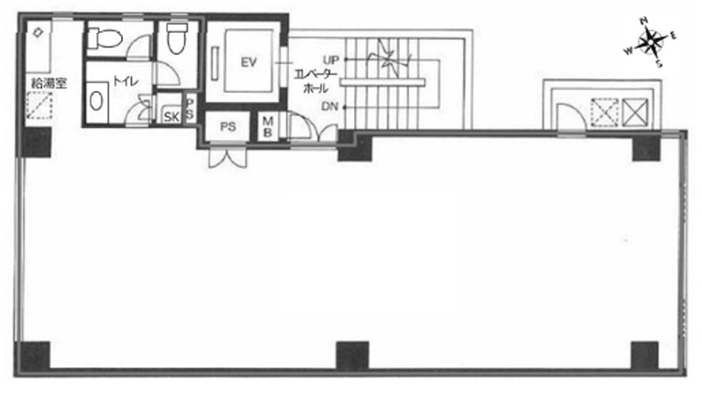
| 階数 | 4階 |
|---|---|
| 用途/仕様 | 事務所 |
| 面積 | 29.68坪(98.12㎡) |
| 賃料 | |
| 共益費 | |
| 保証金/敷金 | |
| 入居日 | 2025/9/上 |
| 所在地 | 東京都台東区浅草橋1-34-10 |
| 竣工 | 1988年4月 |
| 最寄り駅 |
JR中央・総武線 浅草橋 徒歩 2分 都営浅草線 浅草橋 徒歩 2分 |
| 構造 | SRC造(鉄骨鉄筋コンクリート造) |
ポイント
東京メトロ日比谷線「仲御徒町」駅から徒歩3分、JR・東京メトロ「御徒町」駅・東京メトロ銀座線「末広町」駅から徒歩6分、JR「秋葉原」駅からも徒歩7分圏内にある台東区上野5丁目のオフィスビルです。複数路線を利用できる利便性の高い立地です。
IMIビルは鉄骨鉄筋コンクリート造・地上9階・地下1階建て、1986年11月竣工のビルです。エレベーター1基・個別空調・男女別トイレを完備し、機械警備による24時間使用が可能です。基準階面積は約24坪とコンパクトで、少人数チームのオフィスや分室に適したサイズです。新耐震基準に対応しています。
上野・御徒町エリアはアメ横など商業施設が多く、生活利便性の高いエリアです。IT・クリエイティブ・サービス業など幅広い業種の小規模オフィスをお探しの企業に、ご検討いただきたい物件です。
無料相談で理想のオフィスを見つけましょう
東京で賃貸オフィスをお探しなら、仲介手数料0円の東京オフィスチェックにお任せください。
移転をお考えの方も、お迷いの方も、メールフォームやお電話でお気軽にご相談ください。
稲垣ビル のアクセス
稲垣ビル の募集中区画
この区画にオススメのレイアウト
-
オフィスサンプルレイアウト120
- 広さ
- 30.2坪(100㎡)
- 会議室
- あり
- 従業員数
- 12
-
オフィスサンプルレイアウト118
- 広さ
- 40.2坪(133㎡)
- 会議室
- なし
- 従業員数
- 20
-
オフィスサンプルレイアウト117
- 広さ
- 22.6坪(75㎡)
- 会議室
- あり
- 従業員数
- 11
-
オフィスサンプルレイアウト116
- 広さ
- 39.9坪(132㎡)
- 会議室
- あり
- 従業員数
- 11
稲垣ビル の条件に近い物件
-
赤木屋ビル
東京都台東区三筋1-12-6
- 面積
- 坪 〜
- 空きフロア
- 0
- 最寄り駅
- 新御徒町 徒歩 5分
-
アイランドビルディング
東京都台東区蔵前1-7-7
- 面積
- 坪 〜
- 空きフロア
- 0
- 最寄り駅
- 蔵前 徒歩 1分
-
リーラ仲御徒町
東京都台東区元浅草3-3-5
- 面積
- 坪 〜
- 空きフロア
- 0
- 最寄り駅
- 新御徒町 徒歩 4分
-
ニューウイング蔵前
東京都台東区三筋1-7-1
- 面積
- 坪 〜
- 空きフロア
- 0
- 最寄り駅
- 新御徒町 徒歩 4分
稲垣ビル の近隣のエリア・駅から探す
オフィス移転・物件探しを無料でサポートします
物件探しだけでは、オフィス移転は成功しません。
私たちは単なる「物件紹介会社」ではありません。オフィス移転にかかる費用総額を最小化する専門会社です。物件契約時の仲介手数料0円に加え、内装工事も中間マージンを排除した適正価格でご提案し、トータルコストを大幅に削減します。「希望の物件が見つからない」「移転費用を抑えたい」など、移転をお考えの方はメールまたはお電話でお気軽にご相談ください。



