- 物件番号
- 55482-70940
- 情報更新日
- 2025.11.14
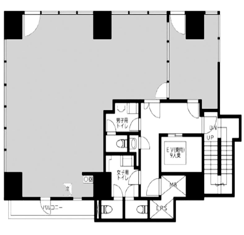
| 階数 | 4 |
|---|---|
| 用途/仕様 | 事務所 |
| 面積 | 32.81坪() |
| 賃料 | |
| 共益費 | |
| 預託金 | 6ヶ月 |
| 入居日 | 即 |
| 所在地 | 東京都千代田区内神田1-9-8 |
| 竣工 | 2024年1月 |
| 最寄り駅 | JR山手線 神田 徒歩 4分 |
| 構造 | RC造 |
ポイント
千代田区内神田1丁目に位置するオフィスビルです。神田駅徒歩4分の好立地。閑静なビル街に佇むエリア。神田ならではの下町感を残しつつ近代的な文化も栄えてきたこのエリア。少し歩けばそこには皇居。2024年築のRC造で、コンクリートなのに柔らかな雰囲気と重厚なガラス張りの建物が印象的で、まるでブランドショップの建物のよう。東京の中心地に近い開放的なオフィスをお探しの方はぜひご検討下さい
無料相談で理想のオフィスを見つけましょう
東京で賃貸オフィスをお探しなら、仲介手数料0円の東京オフィスチェックにお任せください。
移転をお考えの方も、お迷いの方も、メールフォームやお電話でお気軽にご相談ください。
KURAMACHI BLDG. のアクセス
KURAMACHI BLDG. の募集中区画
この区画にオススメのレイアウト
-
オフィスサンプルレイアウト120
- 広さ
- 30.2坪(100㎡)
- 会議室
- あり
- 従業員数
- 12
-
オフィスサンプルレイアウト118
- 広さ
- 40.2坪(133㎡)
- 会議室
- なし
- 従業員数
- 20
-
オフィスサンプルレイアウト117
- 広さ
- 22.6坪(75㎡)
- 会議室
- あり
- 従業員数
- 11
-
オフィスサンプルレイアウト116
- 広さ
- 39.9坪(132㎡)
- 会議室
- あり
- 従業員数
- 11
KURAMACHI BLDG. の近隣のエリア・駅から探す
お問い合わせ
無料相談で理想のオフィスを見つけましょう
東京で賃貸オフィスをお探しなら、仲介手数料0円の東京オフィスチェックにお任せください。移転をお考えの方も、お迷いの方も、メールフォームやお電話でお気軽にご相談ください。








