- 物件番号
- 55127
| 所在地 | 東京都多摩市落合2-33 |
|---|---|
| 竣工 | 2008年1月 |
| 最寄り駅 | 多摩モノレール 多摩センター 徒歩 7分 |
| 構造 | - |
| 階数 | 地上3階 |
| エレベータ | - |
| 空調 | - |
| トイレ | - |
| 警備 | なし |
| 使用時間 | - |
ポイント
クロスガーデン多摩は、東京都多摩市落合に位置する複合商業施設です。多摩ニュータウンの中心地にあり、多摩中央公園に隣接した緑豊かなロケーションが魅力の施設です。 アクセスは多摩モノレール・多摩センター駅から徒歩7分です。京王相模原線・京王多摩センター駅、小田急多摩線・小田急多摩センター駅からも徒歩圏内で、3路線3駅が利用可能です。新宿駅まで京王線で約37分、小田急線で約32分と都心アクセスも良好です。 地上3階建てで2008年1月竣工、築約18年の比較的新しい施設です。開放的なオープンモール型の構造が特徴で、3階には大型の空室があり、店舗やオフィスとしても活用可能です。 施設内にはフーディアムをはじめとする食品スーパーや専門店が入居しています。隣接する多摩中央公園は広大な緑地で、リフレッシュに最適な環境です。近隣にはココリア多摩センターなどの商業施設もあります。 緑豊かな環境で従業員の働きやすさを重視するクリエイティブ系企業やサービス業に最適です。ただし一般的なオフィスビルとは異なる商業施設内の物件のため、看板設置や業種制限の有無は事前にご確認ください。
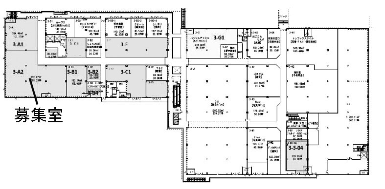
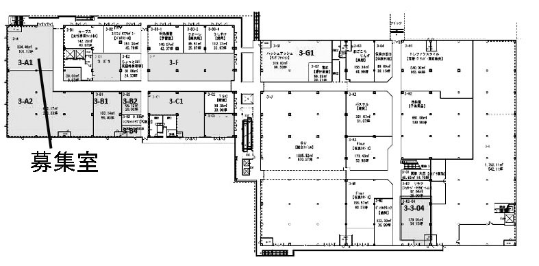
クロスガーデン多摩 の募集中区画
現在、募集中の区画はありません
無料相談で理想のオフィスを見つけましょう
東京で賃貸オフィスをお探しなら、仲介手数料0円の東京オフィスチェックにお任せください。
移転をお考えの方も、お迷いの方も、メールフォームやお電話でお気軽にご相談ください。
クロスガーデン多摩 のアクセス
クロスガーデン多摩 の近隣のエリア・駅から探す
クロスガーデン多摩 の募集終了区画
オフィス移転・物件探しを無料でサポートします
物件探しだけでは、オフィス移転は成功しません。
私たちは単なる「物件紹介会社」ではありません。オフィス移転にかかる費用総額を最小化する専門会社です。物件契約時の仲介手数料0円に加え、内装工事も中間マージンを排除した適正価格でご提案し、トータルコストを大幅に削減します。「希望の物件が見つからない」「移転費用を抑えたい」など、移転をお考えの方はメールまたはお電話でお気軽にご相談ください。
