- 物件番号
- 54514-90045
| 階数 | 3階 |
|---|---|
| 用途/仕様 | 事務所 |
| 面積 | 46.87坪(154.94㎡) |
| 賃料 | |
| 共益費 | |
| 保証金/敷金 | |
| 入居日 | 即 |
| 所在地 | 東京都大田区蒲田5-24-2 |
| 竣工 | 1998年2月 |
| 最寄り駅 |
JR京浜東北線 蒲田 徒歩 4分 京急本線 京急蒲田 徒歩 7分 |
| 構造 | SRC造(鉄骨鉄筋コンクリート造) |
ポイント
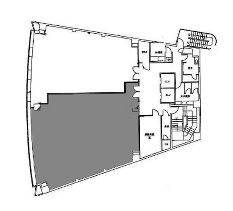
損保ジャパン蒲田ビルは東京都大田区蒲田5-24-2に位置するオフィスビルです。竣工は1998年で、最寄り駅はJR京浜東北線「蒲田」駅徒歩3分。 扇形のワンフロアを2分割した区画が特徴的で、窓面が広くレイアウトしやすい設計。2路線利用可能で、利便性も高い物件です。
無料相談で理想のオフィスを見つけましょう
東京で賃貸オフィスをお探しなら、仲介手数料0円の東京オフィスチェックにお任せください。
移転をお考えの方も、お迷いの方も、メールフォームやお電話でお気軽にご相談ください。
損保ジャパン蒲田ビル のアクセス
損保ジャパン蒲田ビル の募集中区画
現在、他に募集中の区画はありません
この区画にオススメのレイアウト
-
オフィスサンプルレイアウト120
- 広さ
- 30.2坪(100㎡)
- 会議室
- あり
- 従業員数
- 12
-
オフィスサンプルレイアウト118
- 広さ
- 40.2坪(133㎡)
- 会議室
- なし
- 従業員数
- 20
-
オフィスサンプルレイアウト117
- 広さ
- 22.6坪(75㎡)
- 会議室
- あり
- 従業員数
- 11
-
オフィスサンプルレイアウト116
- 広さ
- 39.9坪(132㎡)
- 会議室
- あり
- 従業員数
- 11
損保ジャパン蒲田ビル の近隣のエリア・駅から探す
オフィス移転・物件探しを無料でサポートします
物件探しだけでは、オフィス移転は成功しません。
私たちは単なる「物件紹介会社」ではありません。オフィス移転にかかる費用総額を最小化する専門会社です。物件契約時の仲介手数料0円に加え、内装工事も中間マージンを排除した適正価格でご提案し、トータルコストを大幅に削減します。「希望の物件が見つからない」「移転費用を抑えたい」など、移転をお考えの方はメールまたはお電話でお気軽にご相談ください。








