- 物件番号
- 54377-76414
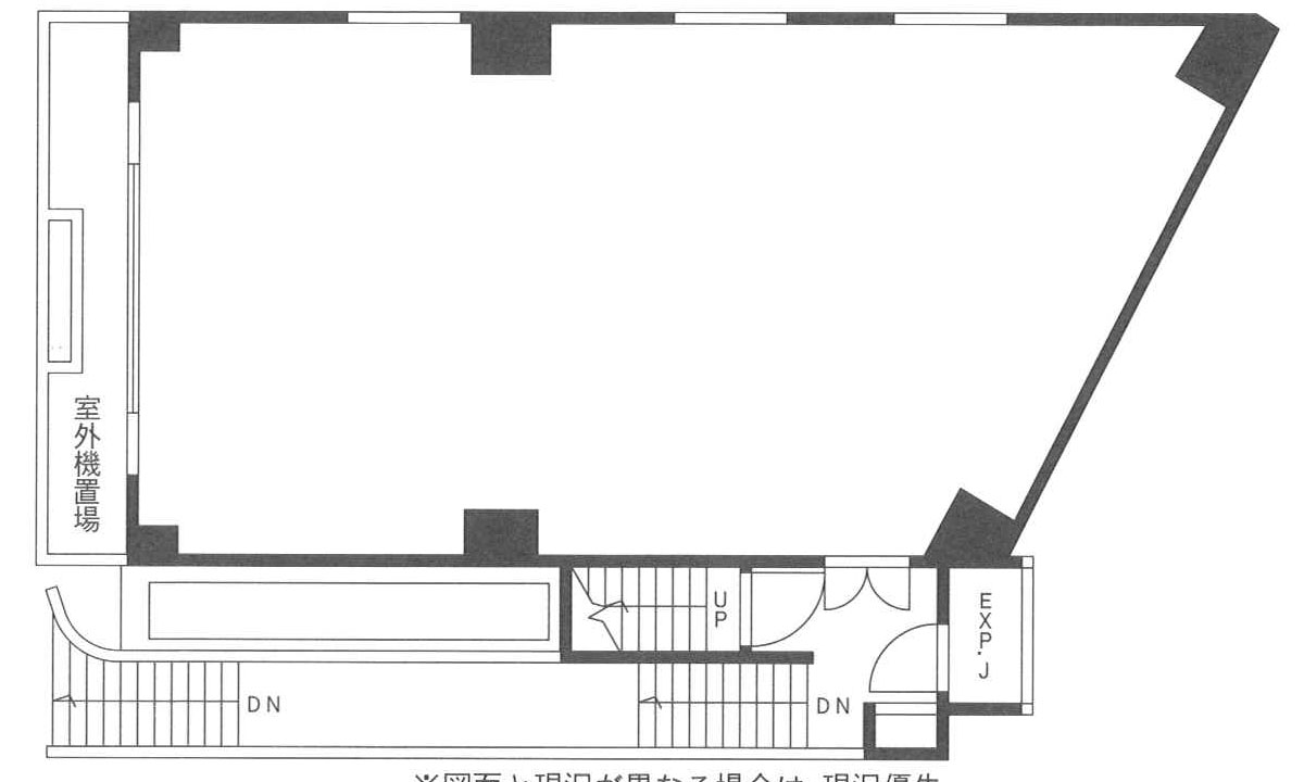
| 階数 | 2階 |
|---|---|
| 用途/仕様 | 事務所・店舗 |
| 面積 | 28.41坪(93.92㎡) |
| 賃料 | |
| 共益費 | |
| 保証金/敷金 | |
| 入居日 | |
| 所在地 | 東京都品川区上大崎2-15-19 |
| 竣工 | 2006年8月 |
| 最寄り駅 |
南北線 目黒 徒歩 1分 都営三田線 目黒 徒歩 1分 JR山手線 目黒 徒歩 1分 東急目黒線 目黒 徒歩 1分 |
| 構造 | RC造(鉄筋コンクリート造) |
ポイント
MG目黒駅前は東京都品川区上大崎2-15-19に位置するオフィスビルです。竣工は2006年で、最寄り駅は南北線「目黒」駅徒歩1分。一棟丸ごとレンタルオフィス仕様で、階ごとに貸会議室・共用ラウンジ・個室スペースが配置されています。
無料相談で理想のオフィスを見つけましょう
東京で賃貸オフィスをお探しなら、仲介手数料0円の東京オフィスチェックにお任せください。
移転をお考えの方も、お迷いの方も、メールフォームやお電話でお気軽にご相談ください。
MG目黒駅前 のアクセス
MG目黒駅前 の募集中区画
現在、他に募集中の区画はありません
この区画にオススメのレイアウト
-
オフィスサンプルレイアウト120
- 広さ
- 30.2坪(100㎡)
- 会議室
- あり
- 従業員数
- 12
-
オフィスサンプルレイアウト118
- 広さ
- 40.2坪(133㎡)
- 会議室
- なし
- 従業員数
- 20
-
オフィスサンプルレイアウト117
- 広さ
- 22.6坪(75㎡)
- 会議室
- あり
- 従業員数
- 11
-
オフィスサンプルレイアウト116
- 広さ
- 39.9坪(132㎡)
- 会議室
- あり
- 従業員数
- 11
MG目黒駅前 の条件に近い物件
-
K2ビル
東京都品川区東五反田5-28-1
- 面積
- 25.11坪 〜
- 空きフロア
- 1
- 最寄り駅
- 五反田 徒歩 2分
-
イマス大崎ビル
東京都品川区大崎1-20-3
- 面積
- 坪 〜
- 空きフロア
- 0
- 最寄り駅
- 大崎 徒歩 2分
-
ONEST西五反田スクエア
東京都品川区西五反田7-24-5
- 面積
- 91.46坪 〜
- 空きフロア
- 1
- 最寄り駅
- 大崎広小路 徒歩 6分
-
矢田ビル
東京都品川区中延6-5-5
- 面積
- 坪 〜
- 空きフロア
- 0
- 最寄り駅
- 中延 徒歩 4分
MG目黒駅前 の近隣のエリア・駅から探す
オフィス移転・物件探しを無料でサポートします
物件探しだけでは、オフィス移転は成功しません。
私たちは単なる「物件紹介会社」ではありません。オフィス移転にかかる費用総額を最小化する専門会社です。物件契約時の仲介手数料0円に加え、内装工事も中間マージンを排除した適正価格でご提案し、トータルコストを大幅に削減します。「希望の物件が見つからない」「移転費用を抑えたい」など、移転をお考えの方はメールまたはお電話でお気軽にご相談ください。



