- 物件番号
- 53082
| 所在地 | 東京都中央区銀座7-17-8 |
|---|---|
| 竣工 | 1984年8月 |
| 最寄り駅 |
都営大江戸線 築地市場 徒歩 2分 東京メトロ日比谷線 東銀座 徒歩 5分 JR山手線 新橋 徒歩 9分 東京メトロ銀座線 銀座 徒歩 10分 |
| 構造 | RC造(鉄筋コンクリート造) |
| 階数 | 地上7階/地下1階 |
| エレベータ | 1基 |
| 空調 | 個別空調 |
| トイレ | 男女別 |
| 警備 | 機械警備 |
| 使用時間 | 24時間使用可 |
ポイント
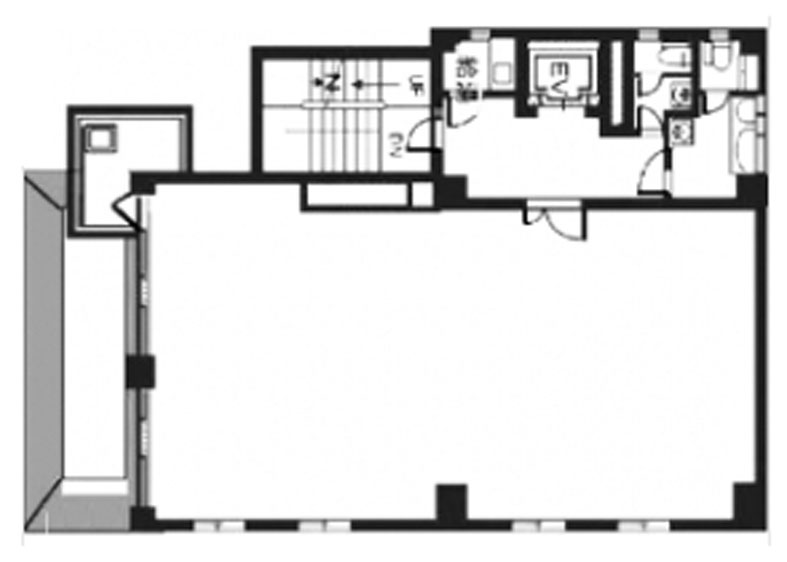
銀座松良ビルは東京都中央区銀座7-17-8に位置するオフィスビルです。竣工は1984年で、最寄り駅は日比谷線「東銀座」駅(徒歩6分)です。ワンフロア約50坪のオフィス物件で、長方形に近い間取り。トイレと給湯スペースは貸室の外に設置されています。地上7階建てでエレベーター1基を完備。セキュリティには機械警備システムを導入し、安全性も確保されています。演舞場通り沿いに立地し、周辺にはオフィスビルが立ち並ぶエリア。築地市場駅が最寄りですが、東銀座駅・新橋駅も利用可能です。ぜひ一度お問い合わせください。
銀座松良ビル の募集中区画
現在、募集中の区画はありません
無料相談で理想のオフィスを見つけましょう
東京で賃貸オフィスをお探しなら、仲介手数料0円の東京オフィスチェックにお任せください。
移転をお考えの方も、お迷いの方も、メールフォームやお電話でお気軽にご相談ください。
銀座松良ビル のアクセス
銀座松良ビル の近隣のエリア・駅から探す
銀座松良ビル の募集終了区画
| 階数 | 面積(坪) | 賃料(円) | 共益費 | 保証金/敷金 | 入居可能日 | 詳細 |
|---|---|---|---|---|---|---|
| B1階 | 23.00坪 | ー | ー | ー | 募集終了 | 詳細 > 銀座松良ビル B1 (76.03㎡) |中央区 の賃貸オフィス・セットアップオフィス |
| 2階 | 46.46坪 | ー | ー | ー | 募集終了 | 詳細 > 銀座松良ビル 2 (153.59㎡) |中央区 の賃貸オフィス・セットアップオフィス |
| 3階 | 48.76坪 | ー | ー | ー | 募集終了 | 詳細 > 銀座松良ビル 3 (161.19㎡) |中央区 の賃貸オフィス・セットアップオフィス |
| 4階 | 48.76坪 | ー | ー | ー | 募集終了 | 詳細 > 銀座松良ビル 4 (161.19㎡) |中央区 の賃貸オフィス・セットアップオフィス |
| 4階 | 56.34坪 | ー | ー | ー | 募集終了 | 詳細 > 銀座松良ビル 4 (186.25㎡) |中央区 の賃貸オフィス・セットアップオフィス |
| 5階 | 48.76坪 | ー | ー | ー | 募集終了 | 詳細 > 銀座松良ビル 5 (161.19㎡) |中央区 の賃貸オフィス・セットアップオフィス |
| 5階 | 40.86坪 | ー | ー | ー | 募集終了 | 詳細 > 銀座松良ビル 5 (135.07㎡) |中央区 の賃貸オフィス・セットアップオフィス |
| 6階 | 34.23坪 | ー | ー | ー | 募集終了 | 詳細 > 銀座松良ビル 6 (113.16㎡) |中央区 の賃貸オフィス・セットアップオフィス |
銀座松良ビル の条件に近い物件
オフィス移転・物件探しを無料でサポートします
物件探しだけでは、オフィス移転は成功しません。
私たちは単なる「物件紹介会社」ではありません。オフィス移転にかかる費用総額を最小化する専門会社です。物件契約時の仲介手数料0円に加え、内装工事も中間マージンを排除した適正価格でご提案し、トータルコストを大幅に削減します。「希望の物件が見つからない」「移転費用を抑えたい」など、移転をお考えの方はメールまたはお電話でお気軽にご相談ください。

