- 物件番号
- 52725
| 所在地 | 東京都中央区八丁堀3-9-5 |
|---|---|
| 竣工 | 1992年7月 |
| 最寄り駅 |
都営浅草線 宝町 徒歩 2分 東京メトロ銀座線 京橋 徒歩 3分 東京メトロ日比谷線 八丁堀 徒歩 3分 |
| 構造 | SRC造(鉄骨鉄筋コンクリート造) |
| 階数 | 地上8階 |
| エレベータ | 1基 |
| 空調 | 個別空調 |
| トイレ | 男女共同 |
| 警備 | なし |
| 使用時間 | 24時間使用可 |
ポイント
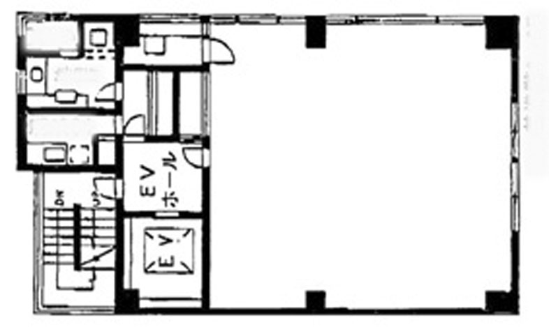
京橋駅より徒歩3分、白いタイル張りの外観の賃貸オフィスビルです。1992年竣工で、リニューアルが実施されています。地上8階建てで、エレベーターは1基設置され、1フロア1テナント仕様となっています。基準階面積は約25坪で、賃室外に男女別トイレと給湯室があるため、オフィス内は効率よくレイアウトすることが可能です。
KSビル の募集中区画
| 階数 | 面積(坪) | 賃料(円) | 共益費 | 保証金/敷金 | 入居可能日 | 検討リスト | 詳細 | 問合せ |
|---|---|---|---|---|---|---|---|---|
| 5階 | 25.05坪 | 300,720円 | 50,120円 | 10ヶ月 | 即 | 詳細 > KSビル 5 (82.81㎡) |中央区 の賃貸オフィス・セットアップオフィス | お問い合わせ > |
無料相談で理想のオフィスを見つけましょう
東京で賃貸オフィスをお探しなら、仲介手数料0円の東京オフィスチェックにお任せください。
移転をお考えの方も、お迷いの方も、メールフォームやお電話でお気軽にご相談ください。
KSビル のアクセス
KSビル の近隣のエリア・駅から探す
KSビル の募集終了区画
| 階数 | 面積(坪) | 賃料(円) | 共益費 | 保証金/敷金 | 入居可能日 | 詳細 |
|---|---|---|---|---|---|---|
| 4階 | 25.06坪 | ー | ー | ー | 募集終了 | 詳細 > KSビル 4 (82.84㎡) |中央区 の賃貸オフィス・セットアップオフィス |
| 8階 | 25.06坪 | ー | ー | ー | 募集終了 | 詳細 > KSビル 8 (82.84㎡) |中央区 の賃貸オフィス・セットアップオフィス |
KSビル の条件に近い物件
オフィス移転・物件探しを無料でサポートします
物件探しだけでは、オフィス移転は成功しません。
私たちは単なる「物件紹介会社」ではありません。オフィス移転にかかる費用総額を最小化する専門会社です。物件契約時の仲介手数料0円に加え、内装工事も中間マージンを排除した適正価格でご提案し、トータルコストを大幅に削減します。「希望の物件が見つからない」「移転費用を抑えたい」など、移転をお考えの方はメールまたはお電話でお気軽にご相談ください。


