- 物件番号
- 52578-72270
| 階数 | 9階 |
|---|---|
| 用途/仕様 | 事務所 |
| 面積 | 26.74坪(88.40㎡) |
| 賃料 | |
| 共益費 | |
| 保証金/敷金 | |
| 入居日 | |
| 所在地 | 東京都中央区日本橋茅場町2-4-5 |
| 竣工 | 2001年1月 |
| 最寄り駅 |
東京メトロ日比谷線 茅場町 徒歩 1分 東京メトロ日比谷線 八丁堀 徒歩 4分 東京メトロ銀座線 日本橋 徒歩 8分 |
| 構造 | S造(鉄骨造) |
ポイント
茅場町2丁目ビルは、東京都中央区日本橋茅場町2-4-5に位置するオフィスビルです。竣工は2001年、最寄り駅は東京メトロ日比谷線「茅場町」駅より徒歩2分。 駅出口すぐの好立地で、周辺には飲食店・郵便局・コンビニなどが揃い便利な環境。開放的な室内と美しい外観・共用部も魅力的な物件です。
無料相談で理想のオフィスを見つけましょう
東京で賃貸オフィスをお探しなら、仲介手数料0円の東京オフィスチェックにお任せください。
移転をお考えの方も、お迷いの方も、メールフォームやお電話でお気軽にご相談ください。
茅場町2丁目ビル のアクセス
茅場町2丁目ビル の募集中区画
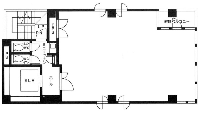
| 階数 | 面積 | 賃料 | 共益費 | 保証金/敷金 | 入居可能日 | 検討リスト | 詳細 | 問合せ |
|---|---|---|---|---|---|---|---|---|
|
新着 4階 |
26.74坪 | 401,100円 | 93,590円 | 12ヶ月 | 2026/7/上 | 詳細 > 茅場町2丁目ビル 4 (88.4㎡) |中央区 の賃貸オフィス・セットアップオフィス | お問い合わせ > |
この区画にオススメのレイアウト
-
オフィスサンプルレイアウト120
- 広さ
- 30.2坪(100㎡)
- 会議室
- あり
- 従業員数
- 12
-
オフィスサンプルレイアウト118
- 広さ
- 40.2坪(133㎡)
- 会議室
- なし
- 従業員数
- 20
-
オフィスサンプルレイアウト117
- 広さ
- 22.6坪(75㎡)
- 会議室
- あり
- 従業員数
- 11
-
オフィスサンプルレイアウト116
- 広さ
- 39.9坪(132㎡)
- 会議室
- あり
- 従業員数
- 11
茅場町2丁目ビル の条件に近い物件
-
日本ビルディング別館
東京都中央区日本橋茅場町1-2-18
- 面積
- 54.43坪 〜
- 空きフロア
- 1
- 最寄り駅
- 茅場町 徒歩 3分
-
RBM東八重洲ビル
東京都中央区八丁堀2-9-1
- 面積
- 133.89坪 〜
- 空きフロア
- 1
- 最寄り駅
- 宝町 徒歩 4分
-
築地アサカワビル
東京都中央区明石町11-3
- 面積
- 50.18坪 〜
- 空きフロア
- 1
- 最寄り駅
- 新富町 徒歩 5分
-
RBM築地駅前ビル
東京都中央区築地2-11-9
- 面積
- 58.23坪 〜
- 空きフロア
- 1
- 最寄り駅
- 築地 徒歩 1分
茅場町2丁目ビル の近隣のエリア・駅から探す
オフィス移転・物件探しを無料でサポートします
物件探しだけでは、オフィス移転は成功しません。
私たちは単なる「物件紹介会社」ではありません。オフィス移転にかかる費用総額を最小化する専門会社です。物件契約時の仲介手数料0円に加え、内装工事も中間マージンを排除した適正価格でご提案し、トータルコストを大幅に削減します。「希望の物件が見つからない」「移転費用を抑えたい」など、移転をお考えの方はメールまたはお電話でお気軽にご相談ください。


