- 物件番号
- 52408-59069
| 階数 | 3階 |
|---|---|
| 用途/仕様 | 事務所 |
| 面積 | 27.53坪(91.01㎡) |
| 賃料 | |
| 共益費 | |
| 保証金/敷金 | |
| 入居日 | |
| 所在地 | 東京都中央区日本橋大伝馬町12-9 |
| 竣工 | 1982年8月 |
| 最寄り駅 |
日比谷線 小伝馬町 徒歩 5分 都営浅草線 東日本橋 徒歩 3分 都営新宿線 馬喰横山 徒歩 2分 JR総武本線 馬喰町 徒歩 3分 |
| 構造 | S造(鉄骨造) |
ポイント
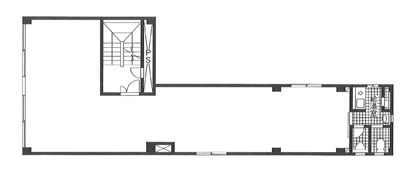
中央区日本橋大伝馬町にある賃貸オフィスビルです。貸付面積は約27坪で、日比谷線「小伝馬町駅」から徒歩5分とアクセス抜群です。他にも都営新宿線馬喰横山駅やJR総武本線馬喰町駅など、複数駅利用可能です。4階建ての建物で、外観はベージュタイルです。執務スペースは細長い長方形に近いL字型で余計な柱はありません。24時間使用可能です。中央区、「日本橋大伝馬町エリア」でオフィスをお探しの企業様は是非ご検討ください。
無料相談で理想のオフィスを見つけましょう
東京で賃貸オフィスをお探しなら、仲介手数料0円の東京オフィスチェックにお任せください。
移転をお考えの方も、お迷いの方も、メールフォームやお電話でお気軽にご相談ください。
神浦日本橋ビル のアクセス
神浦日本橋ビル の募集中区画
現在、他に募集中の区画はありません
この区画にオススメのレイアウト
-
オフィスサンプルレイアウト120
- 広さ
- 30.2坪(100㎡)
- 会議室
- あり
- 従業員数
- 12
-
オフィスサンプルレイアウト118
- 広さ
- 40.2坪(133㎡)
- 会議室
- なし
- 従業員数
- 20
-
オフィスサンプルレイアウト117
- 広さ
- 22.6坪(75㎡)
- 会議室
- あり
- 従業員数
- 11
-
オフィスサンプルレイアウト116
- 広さ
- 39.9坪(132㎡)
- 会議室
- あり
- 従業員数
- 11
神浦日本橋ビル の条件に近い物件
-
小泉ビル
東京都中央区日本橋本石町4-4-16
- 面積
- 14.1坪 〜
- 空きフロア
- 1
- 最寄り駅
- 新日本橋 徒歩 2分
-
朝日ビル第3
東京都中央区日本橋本石町4-4-12
- 面積
- 20坪 〜
- 空きフロア
- 2
- 最寄り駅
- 新日本橋 徒歩 2分
-
小島ビル
東京都中央区日本橋室町4-1-14
- 面積
- 11.7坪 〜
- 空きフロア
- 1
- 最寄り駅
- 新日本橋 徒歩 1分
-
1-8-15ビル
東京都中央区日本橋堀留町1-8-15
- 面積
- 10.58坪 〜
- 空きフロア
- 1
- 最寄り駅
- 人形町 徒歩 2分
神浦日本橋ビル の近隣のエリア・駅から探す
オフィス移転・物件探しを無料でサポートします
物件探しだけでは、オフィス移転は成功しません。
私たちは単なる「物件紹介会社」ではありません。オフィス移転にかかる費用総額を最小化する専門会社です。物件契約時の仲介手数料0円に加え、内装工事も中間マージンを排除した適正価格でご提案し、トータルコストを大幅に削減します。「希望の物件が見つからない」「移転費用を抑えたい」など、移転をお考えの方はメールまたはお電話でお気軽にご相談ください。



