- 物件番号
- 51875
新着
| 所在地 | 東京都千代田区神田神保町1-34 |
|---|---|
| 竣工 | 2023年9月 |
| 最寄り駅 |
東京メトロ半蔵門線 神保町 徒歩 3分 都営三田線 神保町 徒歩 3分 都営新宿線 神保町 徒歩 3分 |
| 構造 | S造(鉄骨造) |
| 階数 | 地上6階/地下1階 |
| エレベータ | あり |
| 空調 | - |
| トイレ | - |
| 警備 | - |
| 使用時間 | - |
ポイント
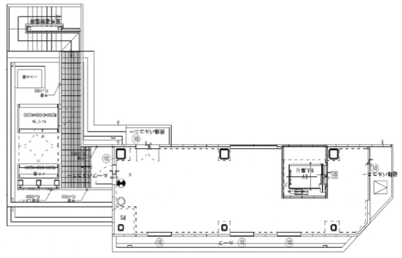
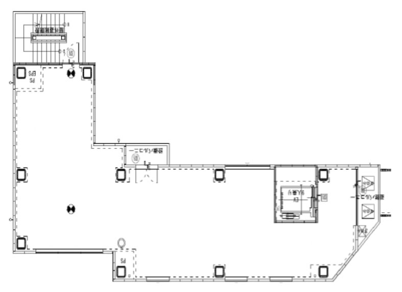
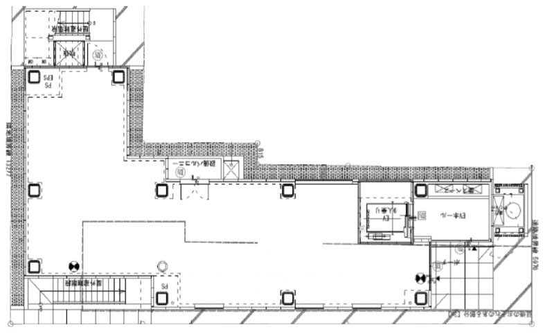
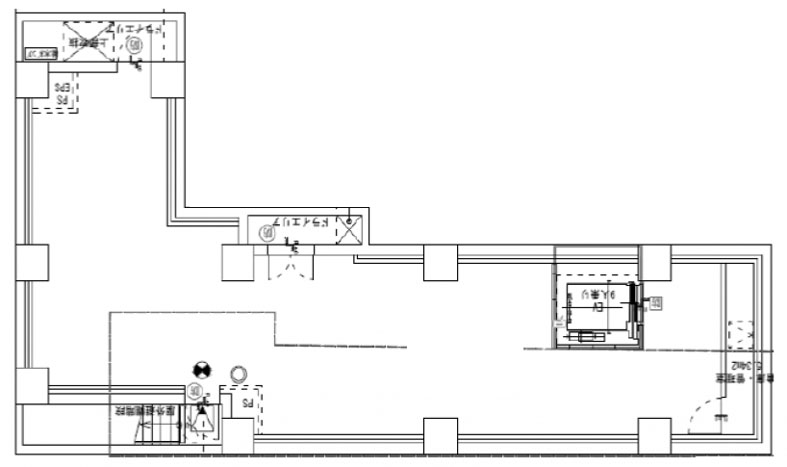
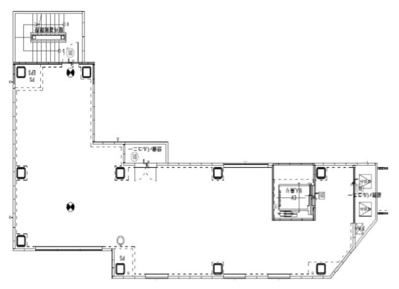
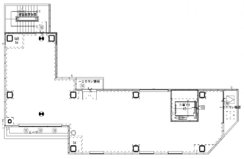
千代田区神田神保町1丁目にある賃貸オフィスビルです。貸付面積は約29坪、半蔵門線「神保町駅」から徒歩3分とアクセス抜群です。他にも都営三田線神保町駅や都営新宿線神保町駅など、複数駅利用可能です。白山通り付近に立地し、近代的なデザインが特徴です。2023年竣工です。室内は細長くL字型に近い間取りで、スケルトン天井で開放感があります。6階建ての建物でエレベーターも1基ございます。千代田区、「神田神保町エリア」でオフィスをお探しの企業様は是非ご検討ください。
ENetial神保町 の募集中区画
現在、募集中の区画はありません
無料相談で理想のオフィスを見つけましょう
東京で賃貸オフィスをお探しなら、仲介手数料0円の東京オフィスチェックにお任せください。
移転をお考えの方も、お迷いの方も、メールフォームやお電話でお気軽にご相談ください。
ENetial神保町 のアクセス
ENetial神保町 の近隣のエリア・駅から探す
ENetial神保町 の募集終了区画
| 階数 | 面積(坪) | 賃料(円) | 共益費 | 保証金/敷金 | 入居可能日 | 詳細 |
|---|---|---|---|---|---|---|
| B1階 | 28.93坪 | ー | ー | ー | 募集終了 | 詳細 > ENetial神保町 B1 (95.64㎡) |内神田・鍛冶町エリア の賃貸オフィス・セットアップオフィス |
| 1階 | 27.35坪 | ー | ー | ー | 募集終了 | 詳細 > ENetial神保町 1 (90.41㎡) |内神田・鍛冶町エリア の賃貸オフィス・セットアップオフィス |
| 2階 | 29.38坪 | ー | ー | ー | 募集終了 | 詳細 > ENetial神保町 2 (97.12㎡) |内神田・鍛冶町エリア の賃貸オフィス・セットアップオフィス |
| 3階 | 29.38坪 | ー | ー | ー | 募集終了 | 詳細 > ENetial神保町 3 (97.12㎡) |内神田・鍛冶町エリア の賃貸オフィス・セットアップオフィス |
| 4階 | 29.38坪 | ー | ー | ー | 募集終了 | 詳細 > ENetial神保町 4 (97.12㎡) |内神田・鍛冶町エリア の賃貸オフィス・セットアップオフィス |
| 5階 | 27.92坪 | ー | ー | ー | 募集終了 | 詳細 > ENetial神保町 5 (92.3㎡) |内神田・鍛冶町エリア の賃貸オフィス・セットアップオフィス |
| 6階 | 14.97坪 | ー | ー | ー | 募集終了 | 詳細 > ENetial神保町 6 (49.49㎡) |内神田・鍛冶町エリア の賃貸オフィス・セットアップオフィス |
ENetial神保町 の条件に近い物件
オフィス移転・物件探しを無料でサポートします
物件探しだけでは、オフィス移転は成功しません。
私たちは単なる「物件紹介会社」ではありません。オフィス移転にかかる費用総額を最小化する専門会社です。物件契約時の仲介手数料0円に加え、内装工事も中間マージンを排除した適正価格でご提案し、トータルコストを大幅に削減します。「希望の物件が見つからない」「移転費用を抑えたい」など、移転をお考えの方はメールまたはお電話でお気軽にご相談ください。




