- 物件番号
- 51680-63486
| 階数 | 8 |
|---|---|
| 用途/仕様 | 事務所 |
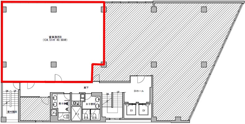
| 面積 | 40.68坪() |
| 賃料 | |
| 共益費 | |
| 保証金/敷金 | |
| 入居日 | |
| 所在地 | 東京都千代田区岩本町2-4-1 |
| 竣工 | 1970年4月 |
| 最寄り駅 |
銀座線 神田 徒歩 6分 日比谷線 秋葉原 徒歩 5分 都営新宿線 岩本町 徒歩 3分 JR山手線 秋葉原 徒歩 8分 JR山手線 神田 徒歩 6分 |
| 構造 | SRC造 |
ポイント
神田岩本町プラザビルは東京都千代田区岩本町2-4-1に位置するオフィスビルです。最寄り駅は東京メトロ銀座線「神田」駅徒歩6分。 岩本町駅徒歩3分、神田駅・秋葉原駅も徒歩圏内。白を基調とした清潔感のある外観と綺麗なエントランスが特徴。エレベーター2基完備で移動のストレスも少ない物件です。
無料相談で理想のオフィスを見つけましょう
東京で賃貸オフィスをお探しなら、仲介手数料0円の東京オフィスチェックにお任せください。
移転をお考えの方も、お迷いの方も、メールフォームやお電話でお気軽にご相談ください。
神田岩本町プラザビル のアクセス
神田岩本町プラザビル の募集中区画
| 階数 | 面積 | 賃料 | 共益費 | 保証金/敷金 | 入居可能日 | 検討リスト | 詳細 |
|---|---|---|---|---|---|---|---|
| 6B | 43.71坪 | 1,158,315円 | 相談 | 詳細 | |||
| 6C | 20.09坪 | 572,565円 | 相談 | 詳細 | |||
| 6 | 22.80坪 | 68,400円 | 8ヶ月 | 即 | 詳細 |
この区画にオススメのレイアウト
-
オフィスサンプルレイアウト120
- 広さ
- 30.2坪(100㎡)
- 会議室
- あり
- 従業員数
- 12
-
オフィスサンプルレイアウト118
- 広さ
- 40.2坪(133㎡)
- 会議室
- なし
- 従業員数
- 20
-
オフィスサンプルレイアウト117
- 広さ
- 22.6坪(75㎡)
- 会議室
- あり
- 従業員数
- 11
-
オフィスサンプルレイアウト116
- 広さ
- 39.9坪(132㎡)
- 会議室
- あり
- 従業員数
- 11
神田岩本町プラザビル の近隣のエリア・駅から探す
オフィス移転・物件探しを無料でサポートします
物件探しだけでは、オフィス移転は成功しません。
私たちは単なる「物件紹介会社」ではありません。オフィス移転にかかる費用総額を最小化する専門会社です。物件契約時の仲介手数料0円に加え、内装工事も中間マージンを排除した適正価格でご提案し、トータルコストを大幅に削減します。「希望の物件が見つからない」「移転費用を抑えたい」など、移転をお考えの方はメールまたはお電話でお気軽にご相談ください。








