- 物件番号
- 51649-75682
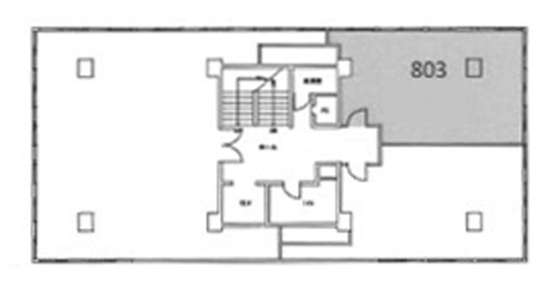
| 階数 | 803 |
|---|---|
| 用途/仕様 | 事務所 |
| 面積 | 15.00坪(49.59㎡) |
| 賃料 | |
| 共益費 | |
| 保証金/敷金 | |
| 入居日 | |
| 所在地 | 東京都千代田区神田佐久間町3-38 |
| 竣工 | 1971年4月 |
| 最寄り駅 |
東京メトロ日比谷線 秋葉原 徒歩 2分 JR山手線 秋葉原 徒歩 4分 都営新宿線 岩本町 徒歩 4分 |
| 構造 | SRC造(鉄骨鉄筋コンクリート造) |
ポイント
第5東ビルは東京都千代田区神田佐久間町3-38に位置するオフィスビルです。竣工は1971年、最寄り駅は東京メトロ日比谷線「秋葉原」駅徒歩2分。 秋葉原駅徒歩2分、昭和通り口からほど近い落ち着いたエリアに位置。大小さまざまな区画を用意しており、ニーズに合わせたオフィス選びが可能。岩本町駅からも徒歩4分です。
無料相談で理想のオフィスを見つけましょう
東京で賃貸オフィスをお探しなら、仲介手数料0円の東京オフィスチェックにお任せください。
移転をお考えの方も、お迷いの方も、メールフォームやお電話でお気軽にご相談ください。
第5東ビル のアクセス
第5東ビル の募集中区画
| 階数 | 面積 | 賃料 | 共益費 | 保証金/敷金 | 入居可能日 | 検討リスト | 詳細 | 問合せ |
|---|---|---|---|---|---|---|---|---|
|
新着 201 |
54.00坪 | 540,000円 | 162,000円 | 8ヶ月 | 即 | 詳細 > 第5東ビル 201 (178.51㎡) |千代田区 の賃貸オフィス・セットアップオフィス | お問い合わせ > | |
|
新着 401 |
33.00坪 | 396,000円 | 99,000円 | 8ヶ月 | 26-8 | 詳細 > 第5東ビル 401 (109.09㎡) |千代田区 の賃貸オフィス・セットアップオフィス | お問い合わせ > |
この区画にオススメのレイアウト
-
オフィスサンプルレイアウト98
- 広さ
- 14.7坪(49㎡)
- 会議室
- あり
- 従業員数
- 4
-
オフィスサンプルレイアウト70
- 広さ
- 14.4坪(48㎡)
- 会議室
- あり
- 従業員数
- 5
-
オフィスサンプルレイアウト64
- 広さ
- 16.8坪(56㎡)
- 会議室
- あり
- 従業員数
- 5
-
オフィスサンプルレイアウト61
- 広さ
- 15.6坪(52㎡)
- 会議室
- あり
- 従業員数
- 7
第5東ビル の条件に近い物件
-
KKビル
東京都千代田区東神田1-4-11
- 面積
- 14.96坪 〜
- 空きフロア
- 1
- 最寄り駅
- 馬喰町 徒歩 3分
-
龍角散ビル
東京都千代田区東神田2-5-12
- 面積
- 85.99坪 〜
- 空きフロア
- 1
- 最寄り駅
- 馬喰町 徒歩 5分
-
お茶の水ミワビル
東京都千代田区外神田2-19-14
- 面積
- 13.12坪 〜
- 空きフロア
- 1
- 最寄り駅
- 御茶ノ水 徒歩 3分
-
神田佐久間町一丁目計画
東京都千代田区神田佐久間町1-9
- 面積
- 38.4坪 〜
- 空きフロア
- 16
- 最寄り駅
- 秋葉原 徒歩 3分
第5東ビル の近隣のエリア・駅から探す
オフィス移転・物件探しを無料でサポートします
物件探しだけでは、オフィス移転は成功しません。
私たちは単なる「物件紹介会社」ではありません。オフィス移転にかかる費用総額を最小化する専門会社です。物件契約時の仲介手数料0円に加え、内装工事も中間マージンを排除した適正価格でご提案し、トータルコストを大幅に削減します。「希望の物件が見つからない」「移転費用を抑えたい」など、移転をお考えの方はメールまたはお電話でお気軽にご相談ください。










