- 物件番号
- 249382
| 所在地 | 東京都中央区日本橋小舟町6-3 |
|---|---|
| 竣工 | 1991年2月 |
| 最寄り駅 |
東京メトロ銀座線 三越前 徒歩 6分 東京メトロ半蔵門線 三越前 徒歩 6分 東京メトロ日比谷線 人形町 徒歩 7分 都営浅草線 人形町 徒歩 7分 |
| 構造 | S造(鉄骨造) |
| 階数 | 地上8階/地下1階 |
| エレベータ | 1基 |
| 空調 | 個別空調 |
| トイレ | 男女別 |
| 警備 | 機械警備 |
| 使用時間 | 24時間使用可 |
ポイント
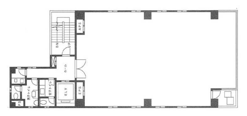
日本橋山大ビルは、東京メトロ銀座線・半蔵門線「三越前」駅より徒歩5分に位置する、1991年竣工の賃貸オフィスビルです。鉄骨造の地上8階・地下1階建てで、新耐震基準に適合しています。基準階面積は約48坪、天井高2,600mmと開放感に優れたオフィス空間が特徴で、床は3WAY仕様、個別空調、男女別トイレを完備しています。
おしゃれな外観デザインも目を引くポイントで、敷地内には3台分の駐車場も用意されています。JR総武線快速「新日本橋」駅徒歩6分、東京メトロ日比谷線・都営浅草線「人形町」駅徒歩8分と複数路線が利用でき、都内各方面への移動に便利です。徒歩2分の場所に日本橋小舟町郵便局があり、郵便・発送業務にも重宝します。
日本橋小舟町エリアは静かなオフィス街で、集中して業務に取り組める環境が魅力です。周辺にはコンビニエンスストアやカフェが近接しており、日常のビジネスニーズにも対応しています。日本橋エリアならではの老舗飲食店や話題のレストランも徒歩圏内にあり、ランチタイムの食事も充実しています。
日本橋山大ビル の募集中区画
| 階数 | 面積(坪) | 賃料(円) | 共益費 | 保証金/敷金 | 入居可能日 | 検討リスト | 詳細 | 問合せ |
|---|---|---|---|---|---|---|---|---|
|
新着 3階 |
48.54坪 | 728,100円 | 込 | 10ヶ月 | 即 | 詳細 > 日本橋山大ビル 3 (160.46㎡) |中央区 の賃貸オフィス・セットアップオフィス | お問い合わせ > |
無料相談で理想のオフィスを見つけましょう
東京で賃貸オフィスをお探しなら、仲介手数料0円の東京オフィスチェックにお任せください。
移転をお考えの方も、お迷いの方も、メールフォームやお電話でお気軽にご相談ください。
日本橋山大ビル のアクセス
日本橋山大ビル の近隣のエリア・駅から探す
日本橋山大ビル の募集終了区画
| 階数 | 面積(坪) | 賃料(円) | 共益費 | 保証金/敷金 | 入居可能日 | 詳細 |
|---|---|---|---|---|---|---|
| 5階 | 48.54坪 | ー | ー | ー | 募集終了 | 詳細 > 日本橋山大ビル 5 (160.46㎡) |中央区 の賃貸オフィス・セットアップオフィス |
日本橋山大ビル の条件に近い物件
オフィス移転・物件探しを無料でサポートします
物件探しだけでは、オフィス移転は成功しません。
私たちは単なる「物件紹介会社」ではありません。オフィス移転にかかる費用総額を最小化する専門会社です。物件契約時の仲介手数料0円に加え、内装工事も中間マージンを排除した適正価格でご提案し、トータルコストを大幅に削減します。「希望の物件が見つからない」「移転費用を抑えたい」など、移転をお考えの方はメールまたはお電話でお気軽にご相談ください。


