- 物件番号
- 248971
| 所在地 | 東京都葛飾区新小岩1-39-6 |
|---|---|
| 竣工 | 1977年11月 |
| 最寄り駅 | JR中央・総武線 新小岩 徒歩 3分 |
| 構造 | RC造(鉄筋コンクリート造) |
| 階数 | */6 |
| エレベータ | 1基 |
| 空調 | 個別空調 |
| トイレ | 男女別 |
| 警備 | なし |
| 使用時間 | 24時間使用可 |
ポイント
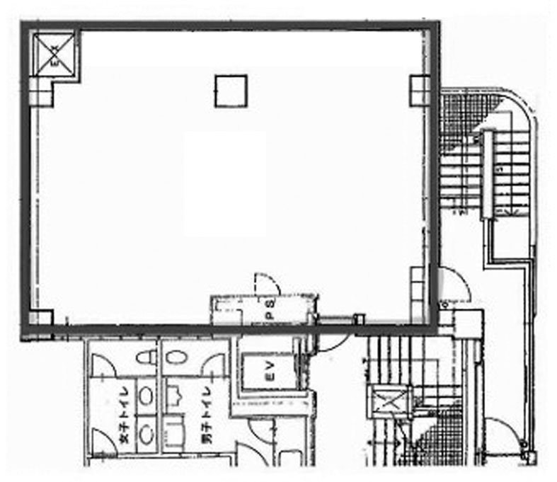
タックビルは、東京都葛飾区新小岩に位置する地上6階建ての鉄筋コンクリート造オフィスビルです。JR総武線新小岩駅から徒歩3分の立地にあります。エレベーター1基を完備し、個別空調や男女別トイレ、OAフロアなど充実した設備を備えています。
24時間利用が可能で、1階にはマツモトキヨシが入居しており、商店街沿いの視認性の高い場所に位置しています。駐車場も用意されており、車での通勤やビジネス利用にも対応できます。光ファイバーに対応しているため、通信環境も整っています。
新小岩駅は総武線快速の停車駅で、東京駅まで約15分という都心への好アクセスが魅力です。駅周辺には商店街やスーパー、飲食店が充実しており、利便性の高いビジネス環境が整っています。
タックビル の募集中区画
現在、募集中の区画はありません
無料相談で理想のオフィスを見つけましょう
東京で賃貸オフィスをお探しなら、仲介手数料0円の東京オフィスチェックにお任せください。
移転をお考えの方も、お迷いの方も、メールフォームやお電話でお気軽にご相談ください。
タックビル のアクセス
タックビル の近隣のエリア・駅から探す
タックビル の募集終了区画
| 階数 | 面積(坪) | 賃料(円) | 共益費 | 保証金/敷金 | 入居可能日 | 詳細 |
|---|---|---|---|---|---|---|
| 301 | 15.83坪 | ー | ー | ー | 募集終了 | 詳細 > タックビル 301 (52.33㎡) |葛飾区 の賃貸オフィス・セットアップオフィス |
| 303 | 23.10坪 | ー | ー | ー | 募集終了 | 詳細 > タックビル 303 (76.36㎡) |葛飾区 の賃貸オフィス・セットアップオフィス |
| 402 | 22.19坪 | ー | ー | ー | 募集終了 | 詳細 > タックビル 402 (73.36㎡) |葛飾区 の賃貸オフィス・セットアップオフィス |
オフィス移転・物件探しを無料でサポートします
物件探しだけでは、オフィス移転は成功しません。
私たちは単なる「物件紹介会社」ではありません。オフィス移転にかかる費用総額を最小化する専門会社です。物件契約時の仲介手数料0円に加え、内装工事も中間マージンを排除した適正価格でご提案し、トータルコストを大幅に削減します。「希望の物件が見つからない」「移転費用を抑えたい」など、移転をお考えの方はメールまたはお電話でお気軽にご相談ください。



