物件のお問い合わせ
下記に必要事項を入力し、当社規定のプライバシーポリシーにご同意の上、「入力内容確認画面へ」ボタンを押してください。
お送りいただきました問い合わせについては、後⽇折り返しご返答させていただきます。
お問い合わせ物件情報
-
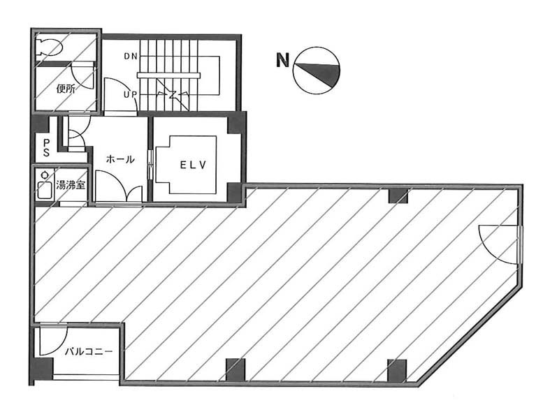
TKKビル
- 物件番号
- 51757-66139
所在地 階数 面積(坪) 賃料(円) 共益費(円) 預託金 入居可能日 検討リスト 
東京都千代田区神田富山町1-2 5 18.55 詳細
下記に必要事項を入力し、当社規定のプライバシーポリシーにご同意の上、「入力内容確認画面へ」ボタンを押してください。
お送りいただきました問い合わせについては、後⽇折り返しご返答させていただきます。
TKKビル
| 所在地 | 階数 | 面積(坪) | 賃料(円) | 共益費(円) | 預託金 | 入居可能日 | 検討リスト | ||
|---|---|---|---|---|---|---|---|---|---|
![]() |
東京都千代田区神田富山町1-2 | 5 | 18.55 | 詳細 |