- 物件番号
- 56387-72565
- 情報更新日
- 2025.11.14
| 階数 | 26 |
|---|---|
| 用途/仕様 | 事務所 |
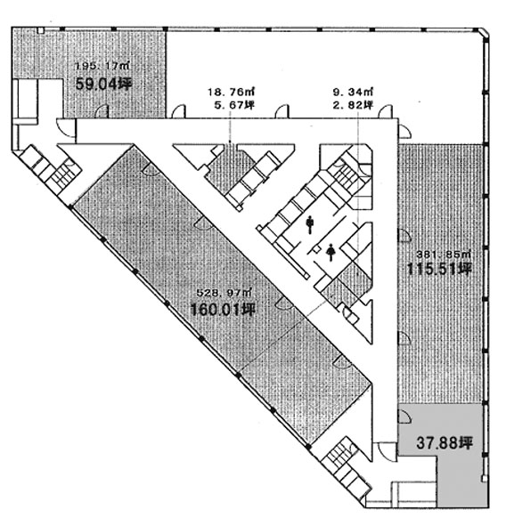
| 面積 | 160.01坪() |
| 賃料 | |
| 共益費 | |
| 預託金 | |
| 入居日 | |
| 所在地 | 東京都新宿区西新宿2-7-1 |
| 竣工 | 1980年8月 |
| 最寄り駅 |
丸ノ内線 西新宿 徒歩 5分 都営大江戸線 都庁前 徒歩 2分 JR山手線 新宿 徒歩 12分 |
| 構造 | S造 |
ポイント
新宿第一生命ビルディングは、1980年竣工のハイグレードオフィスビルです。東京メトロ丸ノ内線「西新宿」駅から徒歩5分の好立地にあり、西新宿の高層ビル街に位置しています。OAフロア・機械警備・男女別トイレなど設備が充実しており、地下通路で駅と直結しているため、雨の日でも快適に通勤が可能です。新宿中央公園も近く、緑豊かな環境が魅力。新宿エリアで高品質なオフィスをお探しの方におすすめです。
無料相談で理想のオフィスを見つけましょう
東京で賃貸オフィスをお探しなら、仲介手数料0円の東京オフィスチェックにお任せください。
移転をお考えの方も、お迷いの方も、メールフォームやお電話でお気軽にご相談ください。
新宿第一生命ビルディング のアクセス
新宿第一生命ビルディング の募集中区画
| 階数 | 面積(坪) | 賃料(円) | 共益費(円) | 預託金 | 入居可能日 | 検討リスト | 詳細 | |
|---|---|---|---|---|---|---|---|---|
![]() |
22-N4 | 46.60 | 即 | 詳細 | ||||
![]() |
22コア | 26.86 | 即 | 詳細 | ||||
![]() |
25-N4 | 46.60 | 2025/2/1 | 詳細 | ||||
![]() |
10 | 58.75 | 6ヶ月以内 | 詳細 |
この区画にオススメのレイアウト
-
オフィスサンプルレイアウト122
- 広さ
- 159.4坪(527㎡)
- 会議室
- あり
- 従業員数
- 50
-
オフィスサンプルレイアウト121
- 広さ
- 189.5坪(627㎡)
- 会議室
- あり
- 従業員数
- 80
-
オフィスサンプルレイアウト113
- 広さ
- 113.4坪(375㎡)
- 会議室
- あり
- 従業員数
- 84
-
オフィスサンプルレイアウト107
- 広さ
- 260.7坪(862㎡)
- 会議室
- あり
- 従業員数
- 96
新宿第一生命ビルディング の近隣のエリア・駅から探す
お問い合わせ
無料相談で理想のオフィスを見つけましょう
東京で賃貸オフィスをお探しなら、仲介手数料0円の東京オフィスチェックにお任せください。移転をお考えの方も、お迷いの方も、メールフォームやお電話でお気軽にご相談ください。








