- 物件番号
- 56281-72325
- 情報更新日
- 2025.11.14
| 階数 | 7 |
|---|---|
| 用途/仕様 | 事務所 |
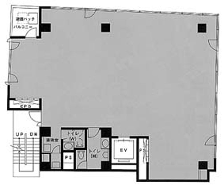
| 面積 | 51.12坪() |
| 賃料 | |
| 共益費 | |
| 預託金 | |
| 入居日 | |
| 所在地 | 東京都新宿区歌舞伎町2-2-14 |
| 竣工 | 1988年1月 |
| 最寄り駅 |
丸ノ内線 新宿三丁目 徒歩 5分 副都心線 東新宿 徒歩 2分 都営大江戸線 東新宿 徒歩 2分 |
| 構造 | RC造 |
ポイント
新宿KSビルは、新宿区歌舞伎町2丁目に位置する賃貸オフィスビルです。東京メトロ副都心線・都営大江戸線の東新宿駅から徒歩2分、丸ノ内線新宿三丁目駅から徒歩5分と、複数路線が利用可能な好立地です。1988年1月竣工の地上9階建てで、明治通り沿いの角地に建つ視認性の高い物件です。基準階面積は約51坪で、レイアウトのしやすい整形なフロアプランが特徴です。24時間利用可能で、機械警備や光ファイバー対応など、セキュリティと利便性を兼ね備えています。新宿エリアでオフィスをお探しの企業様は、ぜひご検討ください。
無料相談で理想のオフィスを見つけましょう
東京で賃貸オフィスをお探しなら、仲介手数料0円の東京オフィスチェックにお任せください。
移転をお考えの方も、お迷いの方も、メールフォームやお電話でお気軽にご相談ください。
新宿KSビル のアクセス
新宿KSビル の募集中区画
| 階数 | 面積(坪) | 賃料(円) | 共益費(円) | 預託金 | 入居可能日 | 検討リスト | 詳細 |
|---|
この区画にオススメのレイアウト
-
オフィスサンプルレイアウト123
- 広さ
- 53.5坪(177㎡)
- 会議室
- あり
- 従業員数
- 11
-
オフィスサンプルレイアウト119
- 広さ
- 85坪(281㎡)
- 会議室
- あり
- 従業員数
- 31
-
オフィスサンプルレイアウト112
- 広さ
- 71.3坪(236㎡)
- 会議室
- あり
- 従業員数
- 33
-
オフィスサンプルレイアウト111
- 広さ
- 85.5坪(283㎡)
- 会議室
- あり
- 従業員数
- 31
新宿KSビル の条件に近い物件
新宿KSビル の近隣のエリア・駅から探す
お問い合わせ
無料相談で理想のオフィスを見つけましょう
東京で賃貸オフィスをお探しなら、仲介手数料0円の東京オフィスチェックにお任せください。移転をお考えの方も、お迷いの方も、メールフォームやお電話でお気軽にご相談ください。









