- 物件番号
- 56259-93053
- 情報更新日
- 2025.11.14
| 階数 | 1 |
|---|---|
| 用途/仕様 | 事務所 |
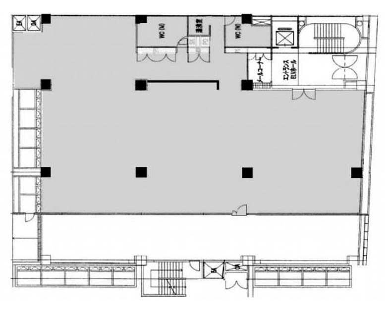
| 面積 | 117.79坪() |
| 賃料 | |
| 共益費 | |
| 預託金 | |
| 入居日 | |
| 所在地 | 東京都新宿区四谷三栄町12-5 |
| 竣工 | 1970年1月 |
| 最寄り駅 |
丸ノ内線 四谷三丁目 徒歩 6分 JR中央線(快速) 四ッ谷 徒歩 7分 |
| 構造 | RC造 |
ポイント
ライラック三栄ビルは東京都新宿区四谷三栄町12-5に位置するオフィスビル。最寄り駅は丸ノ内線「四谷三丁目駅」徒歩6分、JR・メトロ「四ツ谷駅」徒歩10分。三栄通りに面し、契約面積には水回りが含まれないネット面積で、レイアウトしやすい設計です。
無料相談で理想のオフィスを見つけましょう
東京で賃貸オフィスをお探しなら、仲介手数料0円の東京オフィスチェックにお任せください。
移転をお考えの方も、お迷いの方も、メールフォームやお電話でお気軽にご相談ください。
ライラック三栄ビル のアクセス
ライラック三栄ビル の募集中区画
| 階数 | 面積(坪) | 賃料(円) | 共益費(円) | 預託金 | 入居可能日 | 検討リスト | 詳細 |
|---|
この区画にオススメのレイアウト
-
オフィスサンプルレイアウト122
- 広さ
- 159.4坪(527㎡)
- 会議室
- あり
- 従業員数
- 50
-
オフィスサンプルレイアウト121
- 広さ
- 189.5坪(627㎡)
- 会議室
- あり
- 従業員数
- 80
-
オフィスサンプルレイアウト113
- 広さ
- 113.4坪(375㎡)
- 会議室
- あり
- 従業員数
- 84
-
オフィスサンプルレイアウト107
- 広さ
- 260.7坪(862㎡)
- 会議室
- あり
- 従業員数
- 96
ライラック三栄ビル の近隣のエリア・駅から探す
お問い合わせ
無料相談で理想のオフィスを見つけましょう
東京で賃貸オフィスをお探しなら、仲介手数料0円の東京オフィスチェックにお任せください。移転をお考えの方も、お迷いの方も、メールフォームやお電話でお気軽にご相談ください。




