- 物件番号
- 56108-93609
- 情報更新日
- 2025.11.14
| 階数 | 2 |
|---|---|
| 用途/仕様 | 事務所 |
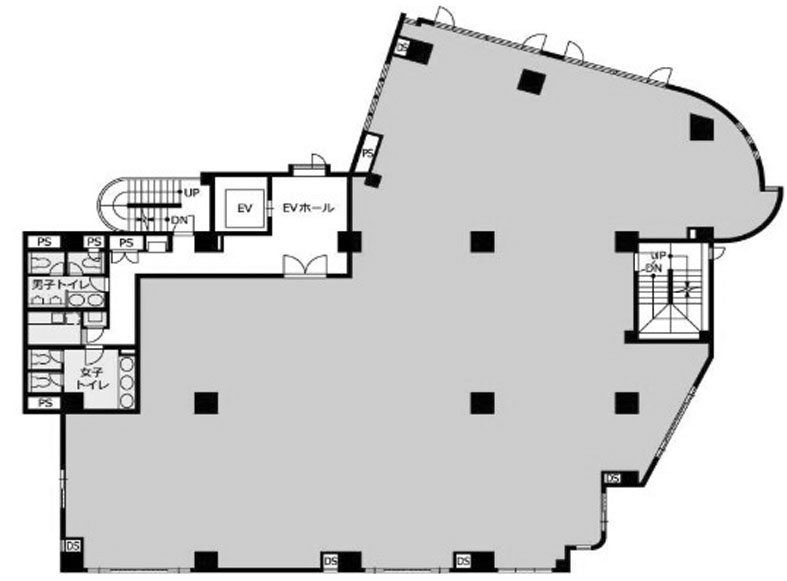
| 面積 | 136.04坪() |
| 賃料 | |
| 共益費 | |
| 預託金 | |
| 入居日 | |
| 所在地 | 東京都目黒区青葉台3-10-1 |
| 竣工 | 1993年10月 |
| 最寄り駅 |
東急東横線 中目黒 徒歩 10分 東急田園都市線 池尻大橋 徒歩 6分 |
| 構造 | SRC造 |
ポイント
VORT青葉台IIは東京都目黒区青葉台3-10-1に位置するオフィスビルです。1993年に竣工し、最寄り駅は東急東横線「中目黒」駅から徒歩10分です。山手通りに近く、わかりやすい立地で、周囲には大型スーパーや飲食店が充実しており、利便性の高い環境です。近隣には桜の名所としても知られる目黒川があります。
無料相談で理想のオフィスを見つけましょう
東京で賃貸オフィスをお探しなら、仲介手数料0円の東京オフィスチェックにお任せください。
移転をお考えの方も、お迷いの方も、メールフォームやお電話でお気軽にご相談ください。
VORT青葉台II のアクセス
VORT青葉台II の募集中区画
| 階数 | 面積(坪) | 賃料(円) | 共益費(円) | 預託金 | 入居可能日 | 検討リスト | 詳細 |
|---|
この区画にオススメのレイアウト
-
オフィスサンプルレイアウト122
- 広さ
- 159.4坪(527㎡)
- 会議室
- あり
- 従業員数
- 50
-
オフィスサンプルレイアウト121
- 広さ
- 189.5坪(627㎡)
- 会議室
- あり
- 従業員数
- 80
-
オフィスサンプルレイアウト113
- 広さ
- 113.4坪(375㎡)
- 会議室
- あり
- 従業員数
- 84
-
オフィスサンプルレイアウト107
- 広さ
- 260.7坪(862㎡)
- 会議室
- あり
- 従業員数
- 96
VORT青葉台II の近隣のエリア・駅から探す
お問い合わせ
無料相談で理想のオフィスを見つけましょう
東京で賃貸オフィスをお探しなら、仲介手数料0円の東京オフィスチェックにお任せください。移転をお考えの方も、お迷いの方も、メールフォームやお電話でお気軽にご相談ください。





