- 物件番号
- 55905-89097
- 情報更新日
- 2025.11.14
| 階数 | 6 |
|---|---|
| 用途/仕様 | 事務所 |
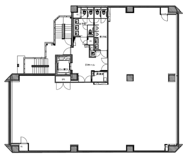
| 面積 | 93.04坪() |
| 賃料 | |
| 共益費 | |
| 預託金 | |
| 入居日 | |
| 所在地 | 東京都渋谷区神南1-4-9 |
| 竣工 | 2023年2月 |
| 最寄り駅 |
銀座線 渋谷 徒歩 7分 千代田線 明治神宮前 徒歩 7分 半蔵門線 渋谷 徒歩 7分 JR山手線 渋谷 徒歩 7分 |
| 構造 | RC造 |
無料相談で理想のオフィスを見つけましょう
東京で賃貸オフィスをお探しなら、仲介手数料0円の東京オフィスチェックにお任せください。
移転をお考えの方も、お迷いの方も、メールフォームやお電話でお気軽にご相談ください。
テアトル神南 オフィス棟 のアクセス
テアトル神南 オフィス棟 の募集中区画
| 階数 | 面積(坪) | 賃料(円) | 共益費(円) | 預託金 | 入居可能日 | 検討リスト | 詳細 |
|---|
この区画にオススメのレイアウト
-
オフィスサンプルレイアウト123
- 広さ
- 53.5坪(177㎡)
- 会議室
- あり
- 従業員数
- 11
-
オフィスサンプルレイアウト119
- 広さ
- 85坪(281㎡)
- 会議室
- あり
- 従業員数
- 31
-
オフィスサンプルレイアウト112
- 広さ
- 71.3坪(236㎡)
- 会議室
- あり
- 従業員数
- 33
-
オフィスサンプルレイアウト111
- 広さ
- 85.5坪(283㎡)
- 会議室
- あり
- 従業員数
- 31
テアトル神南 オフィス棟 の近隣のエリア・駅から探す
お問い合わせ
無料相談で理想のオフィスを見つけましょう
東京で賃貸オフィスをお探しなら、仲介手数料0円の東京オフィスチェックにお任せください。移転をお考えの方も、お迷いの方も、メールフォームやお電話でお気軽にご相談ください。







