- 物件番号
- 55902-95072
- 情報更新日
- 2025.11.14
| 階数 | 4 |
|---|---|
| 用途/仕様 | 事務所 |
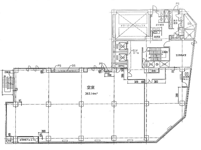
| 面積 | 103.00坪() |
| 賃料 | |
| 共益費 | |
| 預託金 | |
| 入居日 | |
| 所在地 | 東京都渋谷区神南1-21-1 |
| 竣工 | 1979年1月 |
| 最寄り駅 | JR山手線 渋谷 徒歩 5分 |
| 構造 | SRC造 |
ポイント
渋谷区神南1丁目に位置するオフィスビルです。渋谷駅徒歩5分原宿駅徒歩12分2駅2路線の好立地。流行の中心地。ファッション。エンタメ、ビジネスと全てが揃い、全てのカルチャー発信地、渋谷区。1979年築SRC造地上9階/地下1階建の建物。神宮通り沿い角地に面した場所。貫禄の生命保険会社ビルで佇まいはどっしり構えた雰囲気は圧巻。周辺は様々なファッションや飲食店でにぎわうエリア。流行の中心地でお探しの方は是非ご検討ください。
無料相談で理想のオフィスを見つけましょう
東京で賃貸オフィスをお探しなら、仲介手数料0円の東京オフィスチェックにお任せください。
移転をお考えの方も、お迷いの方も、メールフォームやお電話でお気軽にご相談ください。
日本生命渋谷ビル のアクセス
日本生命渋谷ビル の募集中区画
| 階数 | 面積(坪) | 賃料(円) | 共益費(円) | 預託金 | 入居可能日 | 検討リスト | 詳細 |
|---|
この区画にオススメのレイアウト
-
オフィスサンプルレイアウト122
- 広さ
- 159.4坪(527㎡)
- 会議室
- あり
- 従業員数
- 50
-
オフィスサンプルレイアウト121
- 広さ
- 189.5坪(627㎡)
- 会議室
- あり
- 従業員数
- 80
-
オフィスサンプルレイアウト113
- 広さ
- 113.4坪(375㎡)
- 会議室
- あり
- 従業員数
- 84
-
オフィスサンプルレイアウト107
- 広さ
- 260.7坪(862㎡)
- 会議室
- あり
- 従業員数
- 96
日本生命渋谷ビル の近隣のエリア・駅から探す
お問い合わせ
無料相談で理想のオフィスを見つけましょう
東京で賃貸オフィスをお探しなら、仲介手数料0円の東京オフィスチェックにお任せください。移転をお考えの方も、お迷いの方も、メールフォームやお電話でお気軽にご相談ください。




