- 物件番号
- 55890-66008
- 情報更新日
- 2024.12.25
| 階数 | 4 |
|---|---|
| 用途/仕様 | 事務所 |
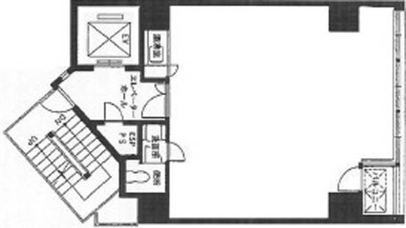
| 面積 | 18.40坪() |
| 賃料 | |
| 共益費 | |
| 預託金 | |
| 入居日 | |
| 所在地 | 東京都渋谷区南平台町15-11 |
| 竣工 | 1987年3月 |
| 最寄り駅 |
銀座線 渋谷 徒歩 10分 JR山手線 渋谷 徒歩 9分 京王井の頭線 神泉 徒歩 6分 |
| 構造 | SRC造 |
ポイント
南平台野坂ビルは東京都渋谷区南平台町15-11に位置するオフィスビルで、1987年に竣工しました。最寄り駅は銀座線「渋谷」駅から徒歩10分です。国道246号沿いに面し、1フロア約18坪とコンパクトなサイズのため、渋谷エリアで小規模オフィスをお探しの方におすすめの物件です。
無料相談で理想のオフィスを見つけましょう
東京で賃貸オフィスをお探しなら、仲介手数料0円の東京オフィスチェックにお任せください。
移転をお考えの方も、お迷いの方も、メールフォームやお電話でお気軽にご相談ください。
南平台野坂ビル のアクセス
南平台野坂ビル の募集中区画
| 階数 | 面積(坪) | 賃料(円) | 共益費(円) | 預託金 | 入居可能日 | 検討リスト | 詳細 |
|---|
この区画にオススメのレイアウト
-
オフィスサンプルレイアウト98
- 広さ
- 14.7坪(49㎡)
- 会議室
- あり
- 従業員数
- 4
-
オフィスサンプルレイアウト70
- 広さ
- 14.4坪(48㎡)
- 会議室
- あり
- 従業員数
- 5
-
オフィスサンプルレイアウト64
- 広さ
- 16.8坪(56㎡)
- 会議室
- あり
- 従業員数
- 5
-
オフィスサンプルレイアウト61
- 広さ
- 15.6坪(52㎡)
- 会議室
- あり
- 従業員数
- 7
南平台野坂ビル の近隣のエリア・駅から探す
お問い合わせ
無料相談で理想のオフィスを見つけましょう
東京で賃貸オフィスをお探しなら、仲介手数料0円の東京オフィスチェックにお任せください。移転をお考えの方も、お迷いの方も、メールフォームやお電話でお気軽にご相談ください。



