- 物件番号
- 55865-83410
- 情報更新日
- 2025.11.14
| 階数 | 5 |
|---|---|
| 用途/仕様 | 事務所 |
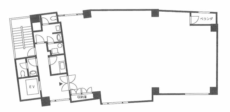
| 面積 | 49.93坪() |
| 賃料 | |
| 共益費 | |
| 預託金 | |
| 入居日 | |
| 所在地 | 東京都渋谷区東2-23-3 |
| 竣工 | 1970年1月 |
| 最寄り駅 |
JR山手線 恵比寿 徒歩 10分 JR山手線 渋谷 徒歩 10分 |
| 構造 | SRC造 |
ポイント
タゴシンビルは東京都渋谷区東2-23-3に位置し、最寄り駅はJR山手線「恵比寿」駅から徒歩10分のオフィスビルです。各階に男女別トイレと個別空調を完備しており、十分な採光を確保した明るいオフィス空間です。明治通り沿いに立地し、視認性の高い建物で、周辺には飲食店や郵便局、コンビニ、スーパーがあり、利便性の高い環境が整っています。
無料相談で理想のオフィスを見つけましょう
東京で賃貸オフィスをお探しなら、仲介手数料0円の東京オフィスチェックにお任せください。
移転をお考えの方も、お迷いの方も、メールフォームやお電話でお気軽にご相談ください。
タゴシンビル のアクセス
タゴシンビル の募集中区画
| 階数 | 面積(坪) | 賃料(円) | 共益費(円) | 預託金 | 入居可能日 | 検討リスト | 詳細 |
|---|
この区画にオススメのレイアウト
-
オフィスサンプルレイアウト120
- 広さ
- 30.2坪(100㎡)
- 会議室
- あり
- 従業員数
- 12
-
オフィスサンプルレイアウト118
- 広さ
- 40.2坪(133㎡)
- 会議室
- なし
- 従業員数
- 20
-
オフィスサンプルレイアウト117
- 広さ
- 22.6坪(75㎡)
- 会議室
- あり
- 従業員数
- 11
-
オフィスサンプルレイアウト116
- 広さ
- 39.9坪(132㎡)
- 会議室
- あり
- 従業員数
- 11
タゴシンビル の近隣のエリア・駅から探す
お問い合わせ
無料相談で理想のオフィスを見つけましょう
東京で賃貸オフィスをお探しなら、仲介手数料0円の東京オフィスチェックにお任せください。移転をお考えの方も、お迷いの方も、メールフォームやお電話でお気軽にご相談ください。




