- 物件番号
- 55760-81772
- 情報更新日
- 2025.11.14
| 階数 | 301 |
|---|---|
| 用途/仕様 | 事務所 |
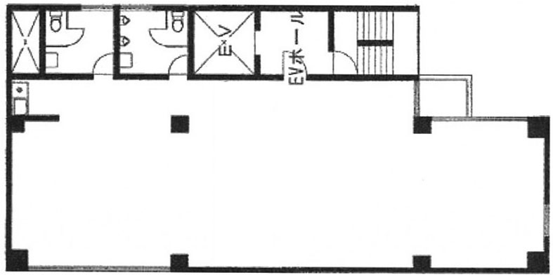
| 面積 | 44.52坪() |
| 賃料 | |
| 共益費 | |
| 預託金 | |
| 入居日 | |
| 所在地 | 東京都大田区大森北1-23-7 |
| 竣工 | 1986年3月 |
| 最寄り駅 |
JR京浜東北線 大森 徒歩 5分 京急本線 大森海岸 徒歩 6分 |
| 構造 | RC造 |
ポイント
NAVALビルは東京都大田区大森北1-23-7に位置し、1986年に竣工したオフィスビルです。最寄り駅はJR京浜東北線「大森」駅から徒歩5分。新耐震基準を満たし、貸室内に水回りを備えたレイアウトしやすい物件。大通りに面し、視認性の高さも魅力です。
無料相談で理想のオフィスを見つけましょう
東京で賃貸オフィスをお探しなら、仲介手数料0円の東京オフィスチェックにお任せください。
移転をお考えの方も、お迷いの方も、メールフォームやお電話でお気軽にご相談ください。
NAVALビル のアクセス
NAVALビル の募集中区画
| 階数 | 面積(坪) | 賃料(円) | 共益費(円) | 預託金 | 入居可能日 | 検討リスト | 詳細 |
|---|
この区画にオススメのレイアウト
-
オフィスサンプルレイアウト120
- 広さ
- 30.2坪(100㎡)
- 会議室
- あり
- 従業員数
- 12
-
オフィスサンプルレイアウト118
- 広さ
- 40.2坪(133㎡)
- 会議室
- なし
- 従業員数
- 20
-
オフィスサンプルレイアウト117
- 広さ
- 22.6坪(75㎡)
- 会議室
- あり
- 従業員数
- 11
-
オフィスサンプルレイアウト116
- 広さ
- 39.9坪(132㎡)
- 会議室
- あり
- 従業員数
- 11
NAVALビル の近隣のエリア・駅から探す
お問い合わせ
無料相談で理想のオフィスを見つけましょう
東京で賃貸オフィスをお探しなら、仲介手数料0円の東京オフィスチェックにお任せください。移転をお考えの方も、お迷いの方も、メールフォームやお電話でお気軽にご相談ください。
