- 物件番号
- 55575-64632
- 情報更新日
- 2024.12.25
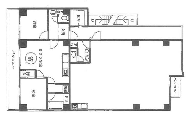
| 階数 | 502 |
|---|---|
| 用途/仕様 | 事務所 |
| 面積 | 23.09坪() |
| 賃料 | |
| 共益費 | |
| 預託金 | |
| 入居日 | |
| 所在地 | 東京都千代田区外神田2-9-3 |
| 竣工 | 1984年5月 |
| 最寄り駅 |
銀座線 末広町 徒歩 4分 JR山手線 秋葉原 徒歩 7分 JR中央・総武線 御茶ノ水 徒歩 6分 |
| 構造 | SRC造 |
ポイント
千代田区外神田2丁目に位置するオフィスビルです。末広町駅徒歩4分御茶ノ水駅徒歩6分秋葉原駅徒歩7分3駅3路線の好立地。家電の街、ラジオの街。そんな歴史ある秋葉原のオフィスビル。喧騒漂う賑やかなメイン通りからは離れた閑静なエリア。神田明神など趣のある雰囲気が残る城下町エリア。1983年築SRC造地上9階/地下1階建の建物。耐震補強済みで安心安全な建物になっております。様々なカルチャー文化を発信してきた秋葉原でお探しの方はぜひご検討ください。
無料相談で理想のオフィスを見つけましょう
東京で賃貸オフィスをお探しなら、仲介手数料0円の東京オフィスチェックにお任せください。
移転をお考えの方も、お迷いの方も、メールフォームやお電話でお気軽にご相談ください。
ユニオンビル工新 のアクセス
ユニオンビル工新 の募集中区画
| 階数 | 面積(坪) | 賃料(円) | 共益費(円) | 預託金 | 入居可能日 | 検討リスト | 詳細 |
|---|
この区画にオススメのレイアウト
-
オフィスサンプルレイアウト120
- 広さ
- 30.2坪(100㎡)
- 会議室
- あり
- 従業員数
- 12
-
オフィスサンプルレイアウト118
- 広さ
- 40.2坪(133㎡)
- 会議室
- なし
- 従業員数
- 20
-
オフィスサンプルレイアウト117
- 広さ
- 22.6坪(75㎡)
- 会議室
- あり
- 従業員数
- 11
-
オフィスサンプルレイアウト116
- 広さ
- 39.9坪(132㎡)
- 会議室
- あり
- 従業員数
- 11
ユニオンビル工新 の近隣のエリア・駅から探す
お問い合わせ
無料相談で理想のオフィスを見つけましょう
東京で賃貸オフィスをお探しなら、仲介手数料0円の東京オフィスチェックにお任せください。移転をお考えの方も、お迷いの方も、メールフォームやお電話でお気軽にご相談ください。









