- 物件番号
- 55486-88580
- 情報更新日
- 2025.11.14
| 階数 | 2 |
|---|---|
| 用途/仕様 | 事務所 |
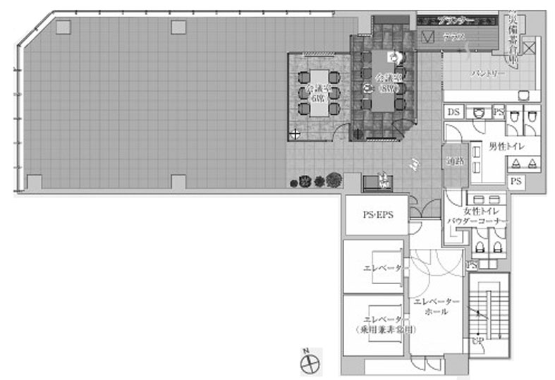
| 面積 | 76.67坪() |
| 賃料 | |
| 共益費 | |
| 預託金 | |
| 入居日 | |
| 所在地 | 東京都中央区入船2-2-2 |
| 竣工 | 2023年4月 |
| 最寄り駅 |
日比谷線 八丁堀 徒歩 3分 日比谷線 築地 徒歩 6分 有楽町線 新富町 徒歩 3分 JR京葉線 八丁堀 徒歩 3分 |
| 構造 | S造 |
ポイント
中央区入船2丁目に位置するオフィスビルです。八丁堀駅徒歩3分新富町駅徒歩3分築地駅徒歩6分4駅3路線の好立地。大通り添いの角地に面した開放的な立地。敷地に余白が多く余裕のある建物はさすが。2023年築のCFT造(SRC造と同じ)で、超近代的な建築が印象的で床下天井窓はもはやPMOの代名詞とも言える。東京の中心地に開放的なオフィスをお探しの方はぜひご検討下さい
無料相談で理想のオフィスを見つけましょう
東京で賃貸オフィスをお探しなら、仲介手数料0円の東京オフィスチェックにお任せください。
移転をお考えの方も、お迷いの方も、メールフォームやお電話でお気軽にご相談ください。
PMO八丁堀V のアクセス
PMO八丁堀V の募集中区画
| 階数 | 面積(坪) | 賃料(円) | 共益費(円) | 預託金 | 入居可能日 | 検討リスト | 詳細 |
|---|
この区画にオススメのレイアウト
-
オフィスサンプルレイアウト123
- 広さ
- 53.5坪(177㎡)
- 会議室
- あり
- 従業員数
- 11
-
オフィスサンプルレイアウト119
- 広さ
- 85坪(281㎡)
- 会議室
- あり
- 従業員数
- 31
-
オフィスサンプルレイアウト112
- 広さ
- 71.3坪(236㎡)
- 会議室
- あり
- 従業員数
- 33
-
オフィスサンプルレイアウト111
- 広さ
- 85.5坪(283㎡)
- 会議室
- あり
- 従業員数
- 31
PMO八丁堀V の条件に近い物件
PMO八丁堀V の近隣のエリア・駅から探す
お問い合わせ
無料相談で理想のオフィスを見つけましょう
東京で賃貸オフィスをお探しなら、仲介手数料0円の東京オフィスチェックにお任せください。移転をお考えの方も、お迷いの方も、メールフォームやお電話でお気軽にご相談ください。





