- 物件番号
- 55402-83240
- 情報更新日
- 2025.11.14
| 階数 | 5 |
|---|---|
| 用途/仕様 | 事務所 |
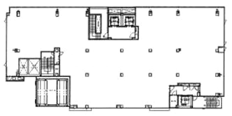
| 面積 | 233.03坪() |
| 賃料 | |
| 共益費 | |
| 預託金 | |
| 入居日 | |
| 所在地 | 神奈川県横浜市中区長者町8-125 |
| 竣工 | 2021年10月 |
| 最寄り駅 |
JR京浜東北線 関内 徒歩 9分 京急本線 日ノ出町 徒歩 4分 |
| 構造 | S造 |
ポイント
横浜市中区長者町8丁目にある賃貸オフィスビルです。JR京浜東北線関内駅から徒歩約9分、京急本線日ノ出町駅徒歩約4分とアクセス便利な立地。2021年築、鉄骨造、地上9階地下1階。スタイリッシュでオシャレな外観です。基準階面積232坪、OA有、フリーアクセスフロアでパソコン環境も安心。横浜・中区エリアでテナント・事務所をお探しの企業様はぜひご検討ください。
無料相談で理想のオフィスを見つけましょう
東京で賃貸オフィスをお探しなら、仲介手数料0円の東京オフィスチェックにお任せください。
移転をお考えの方も、お迷いの方も、メールフォームやお電話でお気軽にご相談ください。
PLATS関内長者町ビル のアクセス
PLATS関内長者町ビル の募集中区画
| 階数 | 面積(坪) | 賃料(円) | 共益費(円) | 預託金 | 入居可能日 | 検討リスト | 詳細 |
|---|
この区画にオススメのレイアウト
-
オフィスサンプルレイアウト122
- 広さ
- 159.4坪(527㎡)
- 会議室
- あり
- 従業員数
- 50
-
オフィスサンプルレイアウト121
- 広さ
- 189.5坪(627㎡)
- 会議室
- あり
- 従業員数
- 80
-
オフィスサンプルレイアウト113
- 広さ
- 113.4坪(375㎡)
- 会議室
- あり
- 従業員数
- 84
-
オフィスサンプルレイアウト107
- 広さ
- 260.7坪(862㎡)
- 会議室
- あり
- 従業員数
- 96
PLATS関内長者町ビル の条件に近い物件
PLATS関内長者町ビル の近隣のエリア・駅から探す
お問い合わせ
無料相談で理想のオフィスを見つけましょう
東京で賃貸オフィスをお探しなら、仲介手数料0円の東京オフィスチェックにお任せください。移転をお考えの方も、お迷いの方も、メールフォームやお電話でお気軽にご相談ください。
