- 物件番号
- 55066-79749
- 情報更新日
- 2025.11.14
| 階数 | 2 |
|---|---|
| 用途/仕様 | 事務所 |
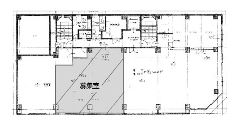
| 面積 | 39.24坪() |
| 賃料 | |
| 共益費 | |
| 預託金 | |
| 入居日 | |
| 所在地 | 東京都立川市柴崎町2-3-6 |
| 竣工 | 1970年1月 |
| 最寄り駅 | JR中央線(快速) 立川 徒歩 2分 |
| 構造 | SRC造 |
ポイント
立川第一生命ビルディングは、東京都立川市柴崎町に位置する賃貸オフィスビルです。JR中央線「立川駅」から徒歩2分という好立地で、アクセスも非常に便利です。地上6階建てのこのビルは、1984年に竣工され、鉄骨鉄筋コンクリート構造を採用しています。広々としたオフィススペースは、テナントのニーズに応じた柔軟なレイアウトが可能で、快適な作業環境を提供します。周辺には飲食店や商業施設も充実しており、ビジネスにもプライベートにも便利なエリアです。立川でオフィスをお探しの企業様には、ぜひご検討いただきたい物件です。
無料相談で理想のオフィスを見つけましょう
東京で賃貸オフィスをお探しなら、仲介手数料0円の東京オフィスチェックにお任せください。
移転をお考えの方も、お迷いの方も、メールフォームやお電話でお気軽にご相談ください。
立川第一生命ビルディング のアクセス
立川第一生命ビルディング の募集中区画
| 階数 | 面積(坪) | 賃料(円) | 共益費(円) | 預託金 | 入居可能日 | 検討リスト | 詳細 |
|---|
この区画にオススメのレイアウト
-
オフィスサンプルレイアウト120
- 広さ
- 30.2坪(100㎡)
- 会議室
- あり
- 従業員数
- 12
-
オフィスサンプルレイアウト118
- 広さ
- 40.2坪(133㎡)
- 会議室
- なし
- 従業員数
- 20
-
オフィスサンプルレイアウト117
- 広さ
- 22.6坪(75㎡)
- 会議室
- あり
- 従業員数
- 11
-
オフィスサンプルレイアウト116
- 広さ
- 39.9坪(132㎡)
- 会議室
- あり
- 従業員数
- 11
立川第一生命ビルディング の近隣のエリア・駅から探す
お問い合わせ
無料相談で理想のオフィスを見つけましょう
東京で賃貸オフィスをお探しなら、仲介手数料0円の東京オフィスチェックにお任せください。移転をお考えの方も、お迷いの方も、メールフォームやお電話でお気軽にご相談ください。
