- 物件番号
- 54855-73767
- 情報更新日
- 2025.11.14
| 階数 | 7A |
|---|---|
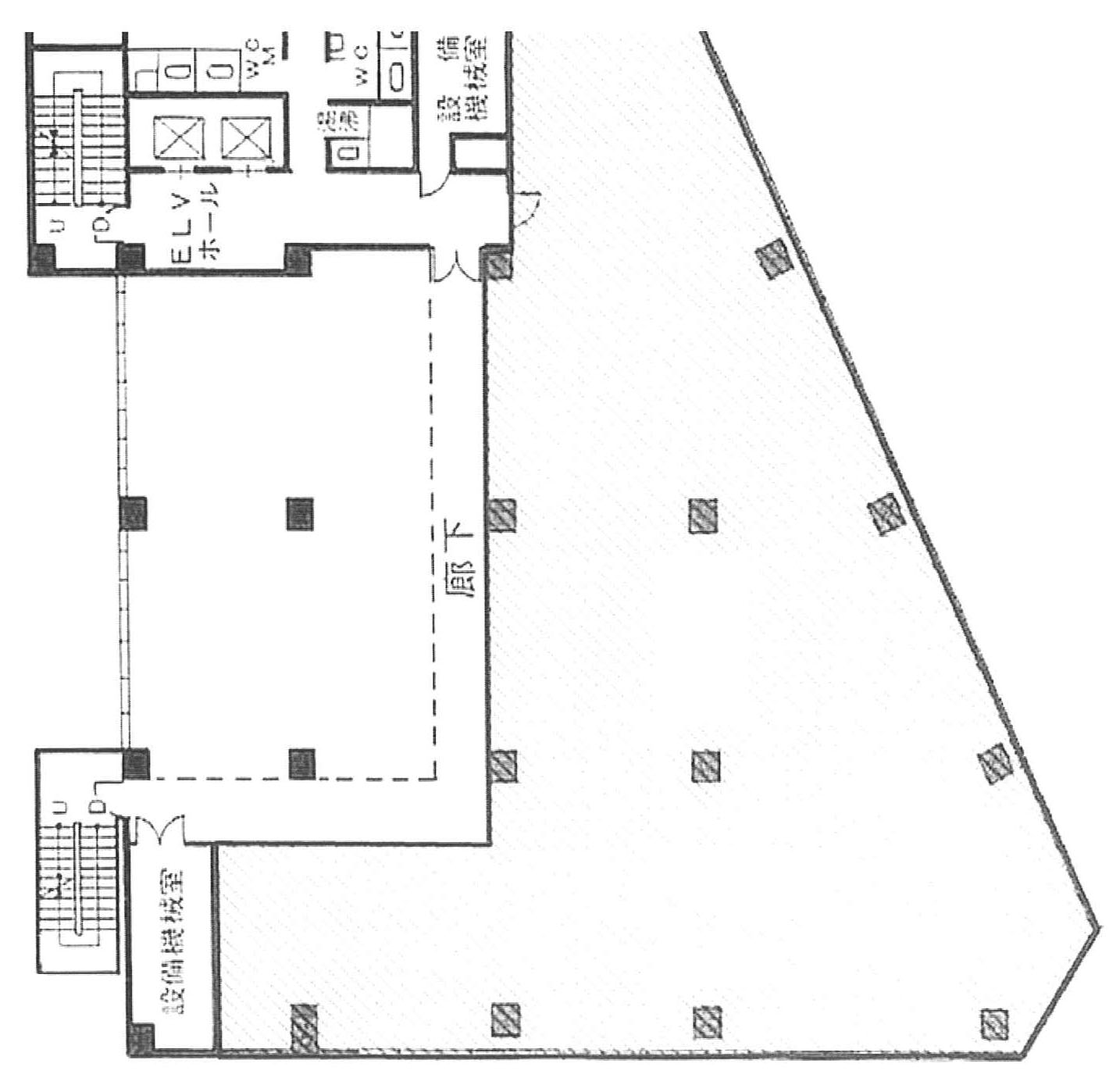
| 用途/仕様 | 事務所 |
| 面積 | 124.78坪() |
| 賃料 | |
| 共益費 | |
| 預託金 | |
| 入居日 | |
| 所在地 | 東京都豊島区東池袋1-34-5 |
| 竣工 | 1970年1月 |
| 最寄り駅 |
丸ノ内線 池袋 徒歩 6分 JR山手線 池袋 徒歩 5分 |
| 構造 | SRC造 |
ポイント
いちご東池袋ビルは東京都豊島区東池袋1-34-5に位置するオフィスビルです。最寄り駅は丸ノ内線「池袋」駅徒歩6分。駅前エリアに立地し、コンビニ、郵便局、銀行、飲食店など利便性が高い環境。明治通り沿いの白い外観が特徴で、共用部リニューアル済み。明るく清潔感のあるエントランスが企業イメージを向上させます。室外に水回りがあり、レイアウトの自由度が高い物件です。
無料相談で理想のオフィスを見つけましょう
東京で賃貸オフィスをお探しなら、仲介手数料0円の東京オフィスチェックにお任せください。
移転をお考えの方も、お迷いの方も、メールフォームやお電話でお気軽にご相談ください。
いちご東池袋ビル のアクセス
いちご東池袋ビル の募集中区画
| 階数 | 面積(坪) | 賃料(円) | 共益費(円) | 預託金 | 入居可能日 | 検討リスト | 詳細 |
|---|
この区画にオススメのレイアウト
-
オフィスサンプルレイアウト122
- 広さ
- 159.4坪(527㎡)
- 会議室
- あり
- 従業員数
- 50
-
オフィスサンプルレイアウト121
- 広さ
- 189.5坪(627㎡)
- 会議室
- あり
- 従業員数
- 80
-
オフィスサンプルレイアウト113
- 広さ
- 113.4坪(375㎡)
- 会議室
- あり
- 従業員数
- 84
-
オフィスサンプルレイアウト107
- 広さ
- 260.7坪(862㎡)
- 会議室
- あり
- 従業員数
- 96
いちご東池袋ビル の近隣のエリア・駅から探す
お問い合わせ
無料相談で理想のオフィスを見つけましょう
東京で賃貸オフィスをお探しなら、仲介手数料0円の東京オフィスチェックにお任せください。移転をお考えの方も、お迷いの方も、メールフォームやお電話でお気軽にご相談ください。

