- 物件番号
- 54680-68718
- 情報更新日
- 2025.06.04
| 階数 | 2 |
|---|---|
| 用途/仕様 | 事務所・ショールーム |
| 面積 | 21.79坪(72.03㎡) |
| 賃料 | |
| 共益費 | |
| 預託金 | |
| 入居日 | |
| 所在地 | 東京都渋谷区代官山町2-3 |
| 竣工 | 2003年2月 |
| 最寄り駅 | 東急東横線 代官山 徒歩 6分 |
| 構造 | RC造 |
ポイント
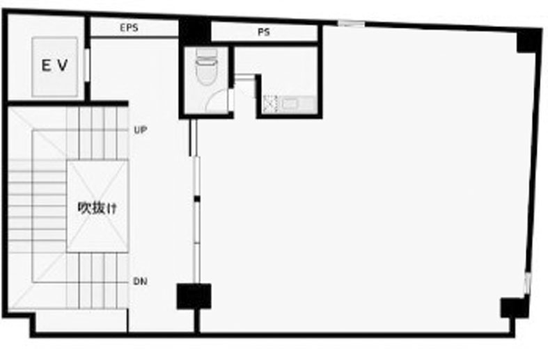
ザ・ロウズ代官山は東京都渋谷区代官山町2-3に位置するオフィスビルです。最寄り駅は東急東横線「代官山」駅徒歩6分。 代官山と渋谷の中間地点に位置し、利便性の高い物件。周辺は住宅街に加え、小規模なアパレルショップや飲食店が並ぶエリア。おしゃれなエリアにオフィスを構えたい方におすすめ。吹き抜けのある開放的なデザインです。
無料相談で理想のオフィスを見つけましょう
東京で賃貸オフィスをお探しなら、仲介手数料0円の東京オフィスチェックにお任せください。
移転をお考えの方も、お迷いの方も、メールフォームやお電話でお気軽にご相談ください。
ザ・ロウズ代官山 のアクセス
ザ・ロウズ代官山 の募集中区画
| 階数 | 面積(坪) | 賃料(円) | 共益費(円) | 預託金 | 入居可能日 | 検討リスト | 詳細 | |
|---|---|---|---|---|---|---|---|---|
![]() |
3 | 21.79 | 424,905 | 込 | 10ヶ月 | 即 | 詳細 |
この区画にオススメのレイアウト
-
オフィスサンプルレイアウト120
- 広さ
- 30.2坪(100㎡)
- 会議室
- あり
- 従業員数
- 12
-
オフィスサンプルレイアウト118
- 広さ
- 40.2坪(133㎡)
- 会議室
- なし
- 従業員数
- 20
-
オフィスサンプルレイアウト117
- 広さ
- 22.6坪(75㎡)
- 会議室
- あり
- 従業員数
- 11
-
オフィスサンプルレイアウト116
- 広さ
- 39.9坪(132㎡)
- 会議室
- あり
- 従業員数
- 11
ザ・ロウズ代官山 の条件に近い物件
-
アメリカンブリッジビル
東京都渋谷区恵比寿南1-23-5
- 面積
- 13坪 〜
- 空きフロア
- 1
- 最寄り駅
- 恵比寿 徒歩 5分
-
渋谷第2TYビル
東京都渋谷区東2-2-8
- 面積
- 41.05坪 〜
- 空きフロア
- 1
- 最寄り駅
- 渋谷 徒歩 8分
-
クリスティエビス
東京都渋谷区東3-17-14
- 面積
- 坪 〜
- 空きフロア
- 0
- 最寄り駅
- 恵比寿 徒歩 3分
-
モードコスモスビル
東京都渋谷区猿楽町28-10
- 面積
- 63.97坪 〜
- 空きフロア
- 1
- 最寄り駅
- 代官山 徒歩 3分
ザ・ロウズ代官山 の近隣のエリア・駅から探す
お問い合わせ
無料相談で理想のオフィスを見つけましょう
東京で賃貸オフィスをお探しなら、仲介手数料0円の東京オフィスチェックにお任せください。移転をお考えの方も、お迷いの方も、メールフォームやお電話でお気軽にご相談ください。




