- 物件番号
- 54446-77537
- 情報更新日
- 2025.11.14
| 階数 | 7 |
|---|---|
| 用途/仕様 | 事務所 |
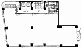
| 面積 | 69.62坪() |
| 賃料 | |
| 共益費 | |
| 預託金 | |
| 入居日 | |
| 所在地 | 東京都品川区西五反田7-1-9 |
| 竣工 | 1987年8月 |
| 最寄り駅 |
都営浅草線 五反田 徒歩 7分 JR山手線 五反田 徒歩 8分 東急目黒線 不動前 徒歩 8分 東急池上線 大崎広小路 徒歩 7分 |
| 構造 | SRC造 |
ポイント
五反田HSビルは東京都品川区西五反田7-1-9に位置するオフィスビルです。竣工は1987年で、最寄り駅は都営浅草線「五反田」駅徒歩7分。 五反田駅・大崎広小路駅・不動前駅の3駅が利用可能。3面採光の明るいオフィスで、角地に位置し視認性も抜群。OAフロア・エレベーター2基完備のハイグレードオフィスです。
無料相談で理想のオフィスを見つけましょう
東京で賃貸オフィスをお探しなら、仲介手数料0円の東京オフィスチェックにお任せください。
移転をお考えの方も、お迷いの方も、メールフォームやお電話でお気軽にご相談ください。
五反田HSビル のアクセス
五反田HSビル の募集中区画
| 階数 | 面積(坪) | 賃料(円) | 共益費(円) | 預託金 | 入居可能日 | 検討リスト | 詳細 |
|---|
この区画にオススメのレイアウト
-
オフィスサンプルレイアウト123
- 広さ
- 53.5坪(177㎡)
- 会議室
- あり
- 従業員数
- 11
-
オフィスサンプルレイアウト119
- 広さ
- 85坪(281㎡)
- 会議室
- あり
- 従業員数
- 31
-
オフィスサンプルレイアウト112
- 広さ
- 71.3坪(236㎡)
- 会議室
- あり
- 従業員数
- 33
-
オフィスサンプルレイアウト111
- 広さ
- 85.5坪(283㎡)
- 会議室
- あり
- 従業員数
- 31
五反田HSビル の近隣のエリア・駅から探す
お問い合わせ
無料相談で理想のオフィスを見つけましょう
東京で賃貸オフィスをお探しなら、仲介手数料0円の東京オフィスチェックにお任せください。移転をお考えの方も、お迷いの方も、メールフォームやお電話でお気軽にご相談ください。



