- 物件番号
- 54384-90640
- 情報更新日
- 2025.11.15
| 階数 | 8 |
|---|---|
| 用途/仕様 | 事務所 |
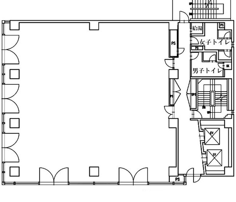
| 面積 | 76.94坪() |
| 賃料 | |
| 共益費 | |
| 預託金 | |
| 入居日 | |
| 所在地 | 東京都品川区上大崎3-5-11 |
| 竣工 | 1992年1月 |
| 最寄り駅 |
南北線 目黒 徒歩 6分 都営三田線 目黒 徒歩 6分 JR山手線 目黒 徒歩 6分 |
| 構造 | SRC造 |
ポイント
品川区上大崎3丁目ある賃貸オフィスビルです。南北線・目黒駅より徒歩約6分、都営三田線・目黒駅より徒歩約6分、JR目黒駅より徒歩約6分の場所に位置しています。築1992年、地上8階地下1階、鉄骨鉄筋コンクリート造の建物は賃貸事務所、オフィスに最適。2018年には共用部をリニューアルしておりクラシカルなデザインがオシャレな印象です。個別空調、機械警備あり。基準階坪数75.63坪、基準階天井高2,500mm。エレベーター2基完備、機械式駐車場もあります。
無料相談で理想のオフィスを見つけましょう
東京で賃貸オフィスをお探しなら、仲介手数料0円の東京オフィスチェックにお任せください。
移転をお考えの方も、お迷いの方も、メールフォームやお電話でお気軽にご相談ください。
MEGURO VILLA GARDEN のアクセス
MEGURO VILLA GARDEN の募集中区画
| 階数 | 面積(坪) | 賃料(円) | 共益費(円) | 預託金 | 入居可能日 | 検討リスト | 詳細 |
|---|
この区画にオススメのレイアウト
-
オフィスサンプルレイアウト123
- 広さ
- 53.5坪(177㎡)
- 会議室
- あり
- 従業員数
- 11
-
オフィスサンプルレイアウト119
- 広さ
- 85坪(281㎡)
- 会議室
- あり
- 従業員数
- 31
-
オフィスサンプルレイアウト112
- 広さ
- 71.3坪(236㎡)
- 会議室
- あり
- 従業員数
- 33
-
オフィスサンプルレイアウト111
- 広さ
- 85.5坪(283㎡)
- 会議室
- あり
- 従業員数
- 31
MEGURO VILLA GARDEN の近隣のエリア・駅から探す
お問い合わせ
無料相談で理想のオフィスを見つけましょう
東京で賃貸オフィスをお探しなら、仲介手数料0円の東京オフィスチェックにお任せください。移転をお考えの方も、お迷いの方も、メールフォームやお電話でお気軽にご相談ください。


