- 物件番号
- 53997-58480
- 情報更新日
- 2024.12.25
| 階数 | 2 |
|---|---|
| 用途/仕様 | 事務所 |
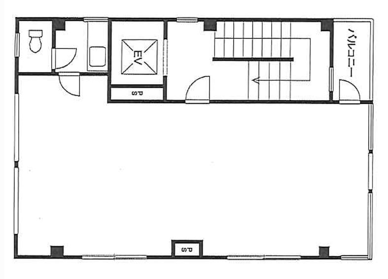
| 面積 | 14.46坪() |
| 賃料 | |
| 共益費 | |
| 預託金 | |
| 入居日 | |
| 所在地 | 東京都台東区台東2-7-10 |
| 竣工 | 1991年1月 |
| 最寄り駅 | 日比谷線 仲御徒町 徒歩 5分 |
| 構造 | S造 |
ポイント
東京都台東区台東にある地上4階の賃貸オフィス物件です。 最寄りは、日比谷線仲御徒町駅徒歩5分です。また、御徒町駅なども徒歩圏内で利用可能です。 1991年竣工、新耐震基準適合で高い安全性、エレベーターが1基設置されており、オフィスは24時間使用可能です。 コンパクトで事務所などに利用しやすい貸室でおすすめできます。
無料相談で理想のオフィスを見つけましょう
東京で賃貸オフィスをお探しなら、仲介手数料0円の東京オフィスチェックにお任せください。
移転をお考えの方も、お迷いの方も、メールフォームやお電話でお気軽にご相談ください。
第2池田ビル のアクセス
第2池田ビル の募集中区画
| 階数 | 面積(坪) | 賃料(円) | 共益費(円) | 預託金 | 入居可能日 | 検討リスト | 詳細 |
|---|
この区画にオススメのレイアウト
-
オフィスサンプルレイアウト98
- 広さ
- 14.7坪(49㎡)
- 会議室
- あり
- 従業員数
- 4
-
オフィスサンプルレイアウト70
- 広さ
- 14.4坪(48㎡)
- 会議室
- あり
- 従業員数
- 5
-
オフィスサンプルレイアウト64
- 広さ
- 16.8坪(56㎡)
- 会議室
- あり
- 従業員数
- 5
-
オフィスサンプルレイアウト61
- 広さ
- 15.6坪(52㎡)
- 会議室
- あり
- 従業員数
- 7
第2池田ビル の近隣のエリア・駅から探す
お問い合わせ
無料相談で理想のオフィスを見つけましょう
東京で賃貸オフィスをお探しなら、仲介手数料0円の東京オフィスチェックにお任せください。移転をお考えの方も、お迷いの方も、メールフォームやお電話でお気軽にご相談ください。


