- 物件番号
- 53986-56909
- 情報更新日
- 2024.12.25
| 階数 | 3 |
|---|---|
| 用途/仕様 | 事務所 |
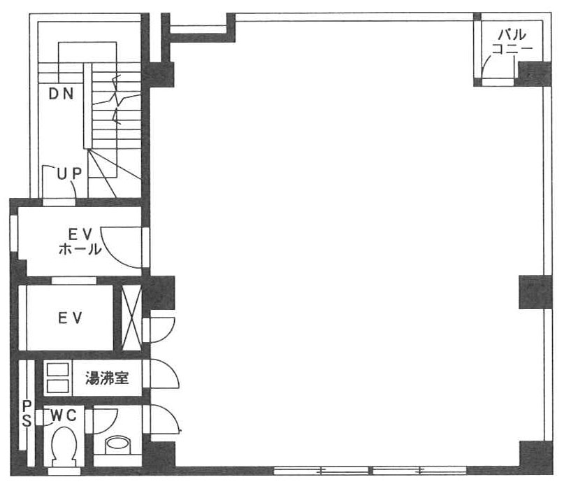
| 面積 | 29.00坪() |
| 賃料 | |
| 共益費 | |
| 預託金 | |
| 入居日 | |
| 所在地 | 東京都台東区台東1-14-9 |
| 竣工 | 1989年1月 |
| 最寄り駅 |
銀座線 末広町 徒歩 8分 日比谷線 仲御徒町 徒歩 8分 日比谷線 秋葉原 徒歩 7分 JR山手線 秋葉原 徒歩 7分 |
| 構造 | SRC造 |
ポイント
東京都台東区台東にある地上7階地下1階の賃貸オフィス物件です。 最寄りは、日比谷線秋葉原駅徒歩7分、JR山手線秋葉原駅徒歩7分、銀座線末広町駅徒歩8分、日比谷線仲御徒町駅徒歩8分です。 1989年竣工、新耐震基準適合、SRC造(鉄骨鉄筋コンクリート構造)、エレベーター1基、個別空調、セキュリティは機械警備です。 駐車場はありません。
無料相談で理想のオフィスを見つけましょう
東京で賃貸オフィスをお探しなら、仲介手数料0円の東京オフィスチェックにお任せください。
移転をお考えの方も、お迷いの方も、メールフォームやお電話でお気軽にご相談ください。
清水ビル のアクセス
清水ビル の募集中区画
| 階数 | 面積(坪) | 賃料(円) | 共益費(円) | 預託金 | 入居可能日 | 検討リスト | 詳細 |
|---|
この区画にオススメのレイアウト
-
オフィスサンプルレイアウト120
- 広さ
- 30.2坪(100㎡)
- 会議室
- あり
- 従業員数
- 12
-
オフィスサンプルレイアウト118
- 広さ
- 40.2坪(133㎡)
- 会議室
- なし
- 従業員数
- 20
-
オフィスサンプルレイアウト117
- 広さ
- 22.6坪(75㎡)
- 会議室
- あり
- 従業員数
- 11
-
オフィスサンプルレイアウト116
- 広さ
- 39.9坪(132㎡)
- 会議室
- あり
- 従業員数
- 11
清水ビル の近隣のエリア・駅から探す
お問い合わせ
無料相談で理想のオフィスを見つけましょう
東京で賃貸オフィスをお探しなら、仲介手数料0円の東京オフィスチェックにお任せください。移転をお考えの方も、お迷いの方も、メールフォームやお電話でお気軽にご相談ください。






