- 物件番号
- 53982-84516
- 情報更新日
- 2025.11.14
| 階数 | 2 |
|---|---|
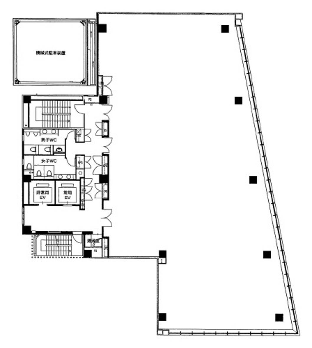
| 用途/仕様 | 事務所 |
| 面積 | 146.13坪() |
| 賃料 | |
| 共益費 | |
| 預託金 | |
| 入居日 | |
| 所在地 | 東京都台東区東上野6-2-1 |
| 竣工 | 2009年10月 |
| 最寄り駅 |
銀座線 稲荷町 徒歩 1分 日比谷線 上野 徒歩 6分 |
| 構造 | S造 |
ポイント
東京都台東区東上野にある地上10階の賃貸オフィス物件です。 最寄りは、銀座線稲荷町駅徒歩1分、日比谷線上野駅徒歩6分です。 ガラス張りで視認性の高い建物、竣工は2009年、天井高も高く、ゆとりのあるオフィス空間です。 浅草通り沿いの開けた眺望も魅力で、セキュリティ面も万全、環境配慮のエコロジー仕様(Low-Eガラスや屋上緑化の採用など)もポイントです。 カフェチェーン店やコンビニ、定食屋などが多いエリアです。
無料相談で理想のオフィスを見つけましょう
東京で賃貸オフィスをお探しなら、仲介手数料0円の東京オフィスチェックにお任せください。
移転をお考えの方も、お迷いの方も、メールフォームやお電話でお気軽にご相談ください。
MPR東上野ビル のアクセス
MPR東上野ビル の募集中区画
| 階数 | 面積(坪) | 賃料(円) | 共益費(円) | 預託金 | 入居可能日 | 検討リスト | 詳細 |
|---|
この区画にオススメのレイアウト
-
オフィスサンプルレイアウト122
- 広さ
- 159.4坪(527㎡)
- 会議室
- あり
- 従業員数
- 50
-
オフィスサンプルレイアウト121
- 広さ
- 189.5坪(627㎡)
- 会議室
- あり
- 従業員数
- 80
-
オフィスサンプルレイアウト113
- 広さ
- 113.4坪(375㎡)
- 会議室
- あり
- 従業員数
- 84
-
オフィスサンプルレイアウト107
- 広さ
- 260.7坪(862㎡)
- 会議室
- あり
- 従業員数
- 96
MPR東上野ビル の近隣のエリア・駅から探す
お問い合わせ
無料相談で理想のオフィスを見つけましょう
東京で賃貸オフィスをお探しなら、仲介手数料0円の東京オフィスチェックにお任せください。移転をお考えの方も、お迷いの方も、メールフォームやお電話でお気軽にご相談ください。





